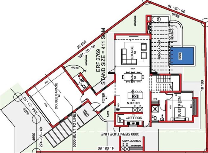
13 Residential properties for sale in Heritage Hill