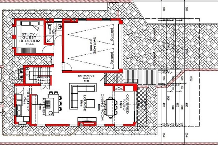
12 Houses for sale in Heritage Hill