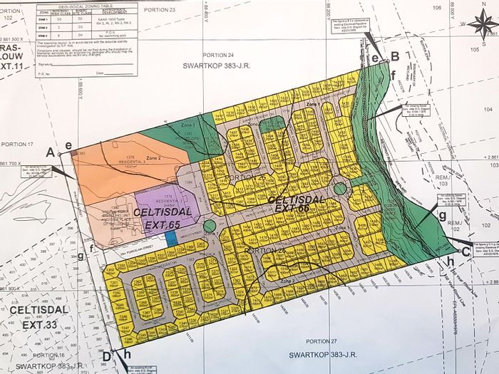
33 Residential Land for sale in Raslouw