Save
Notify Similar
R7,000,000

Office for sale in Parktown North

420m²
Exciting Investment Oppertunity! Invest Today In Serviced Office Space With A Fabulous Location.

420m2 Serviced Office Space FOR SALE in PARK TOWN NORTH.

Calling all investors! This exciting opportunity is not to be missed.

Don`t miss this opportunity to purchase fully furnished and tenanted serviced office in Parktown North.

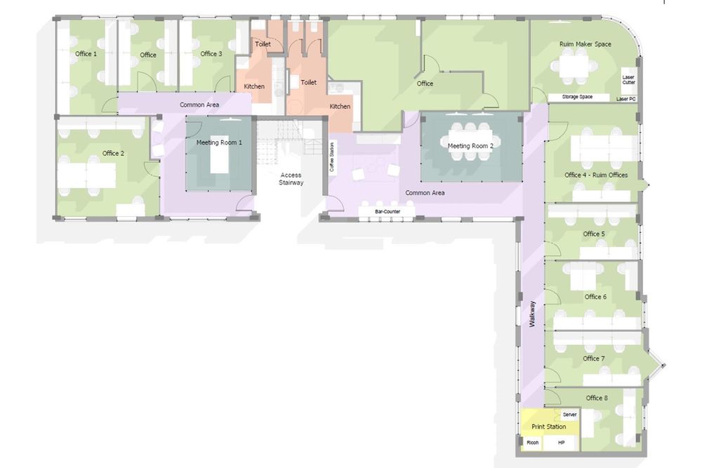
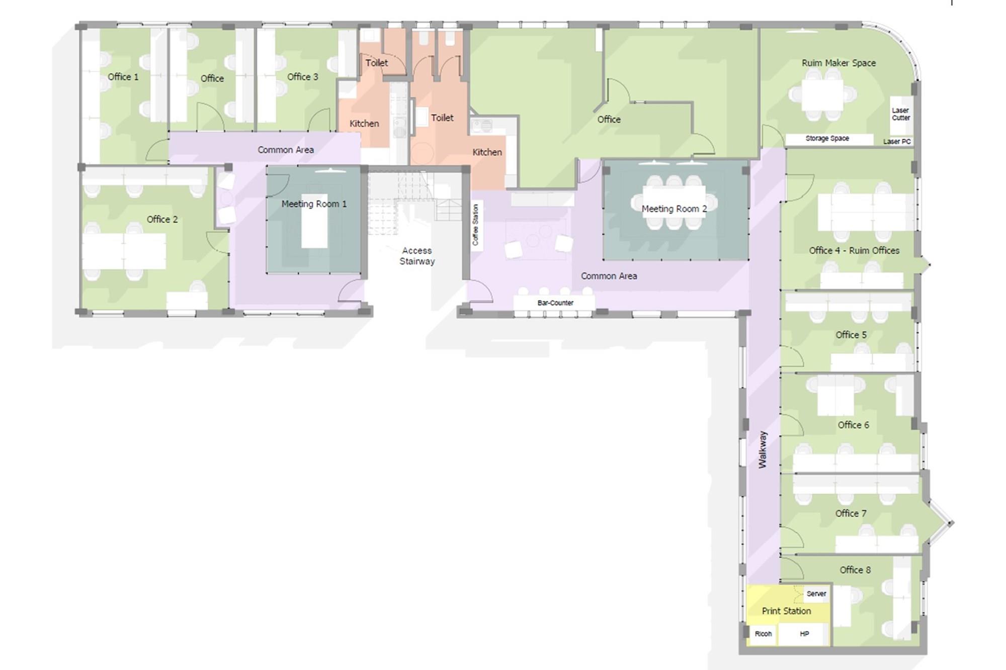
These offices consist of two units within the popular sectional title office building, The Workshop. This face brick Art Deco building is ideally located off Jan Smuts Avenue, close to all the main commercial hubs including the Gautrain Station, Rosebank Mall precinct, hotels, shopping malls and major transport routes.

The premises include two fully fitted kitchen areas complete with fridges, microwaves, and dishwashers. There is a large 8 seater boardroom and a smaller 6 seater meeting room. There are 10 private, lockable offices of various configurations ranging from 3 to 10 desks, 8 of which are currently let.

Property Type
Office
Building Size
420m²
Reference
PC1427077
Property history
Listed for sale at R7,000,000
26 Aug 2025
Get to know Johannesburg
Johannesburg is known by various names just as diverse as the residents - Jozi, Jo’burg, Joeys, eGoli. From its humble beginning as a mining town, Johannesburg has evolved into a buzzing urban hub of activity. From high rises dotting the skyline to leafy suburbs with sprawling properties, the city reflects the history of its growth and major events in Southern African history.
By clicking on "contact" you agree to our privacy policy
Contact Agent
What will my move cost?
Calculate your moving costs to Parktown North with the help of our moving partners.
Get quotes
Moving powered by
Property questions?
Get quick answers about buying, selling, renting, and more from our AI powered real estate bot