Save
Notify Similar
R1,460,000

Vacant Land Residential for sale in The Hills Game Reserve Estate

692m²
Vacant Land / Plot In The Hills Game Reserve Estate

Vacant Land / Plot for Sale in The Hills Game Reserve Estate

Tranquil & Exclusive Living with Nature.

The Hills Game Reserve Estate is an exclusive 1200-acre residential community nestled in the heart of nature.

This secure estate boasts a private game reserve that is home to a variety of antelope and zebra species, providing a unique wildlife experience right at your doorstep.

Situated in Pretoria East along Garsfontein Road, with easy access via a second gatehouse and link on Atterbury Road, The Hills offers the perfect blend of tranquility and convenience.

Just a short drive away from premier shopping destinations like Woodlands and Parkview, residents can enjoy the serene bushveld surroundings while still having all the amenities of city life within reach.

Here, residents discover a tranquil escape from the hustle and bustle of everyday life, finding solace in a community designed to harmonize modern comforts with the breathtaking beauty of the surrounding environment.

The stand is very well situated and well priced.

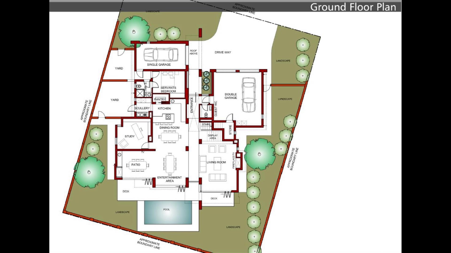
We are also property developers who can assist you in constructing a modern house according to your specific expectations and capital outlay.

Refer to the attached images as a guideline.

Call us!

Property Type
Vacant Land Residential
Stand Size
692m²
Reference
PC1477860
Property history
Listed for sale at R1,470,000
31 Oct 2025
Price reduced by 0.7% to R1,460,000
08 Mar 2026
Get to know The Hills Game Reserve Estate
Ideally located in the sought-after Pretoria East, The Hills Game Reserve Estate is the perfect estate for upmarket buyers looking to escape the hustle and bustle of the city without compromising on convenience and luxury.
By clicking on "contact" you agree to our privacy policy
Contact Agent
MP home loans expert Michael-Anne
Get expert home loan assistance with Michael-Anne
Ask me a question
What will my move cost?
Calculate your moving costs to The Hills Game Reserve Estate with the help of our moving partners.
Get quotes
Moving powered by
Property questions?
Get quick answers about buying, selling, renting, and more from our AI powered real estate bot