Save
Notify Similar
R1,272,300
per month

House to rent in Shongweni

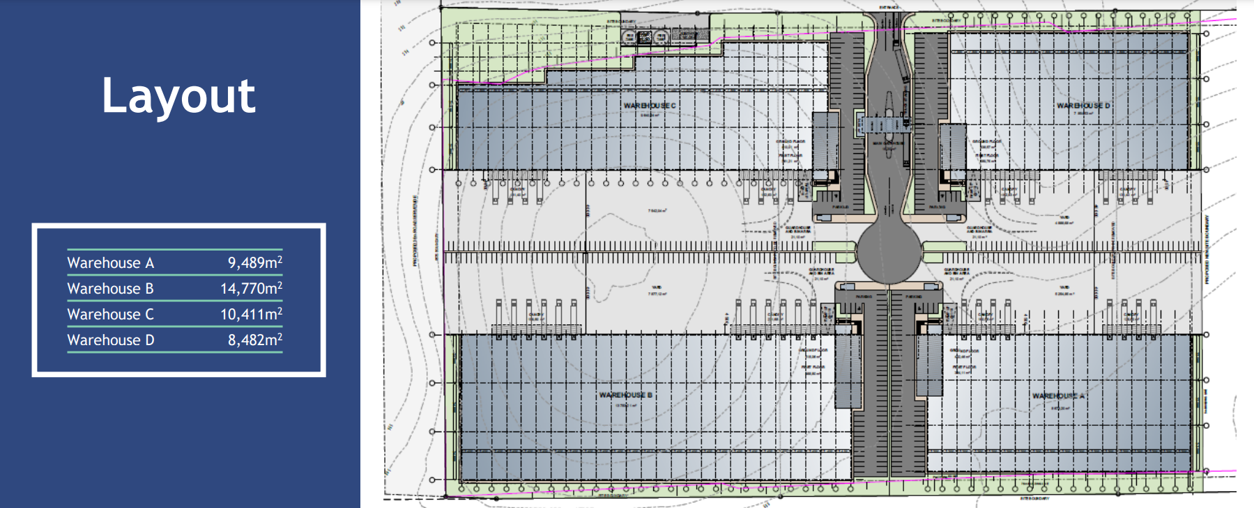
8,482m²
Highly Sought After New Development On N3.

A new industrial development well-situated along the N3, offers ultra-modern, high-spec industrial units in the heart of the well-established Outer West node. The new development includes 24-hour security, access control and is conveniently located to public transport hubs. In addition, units feature an optimal office to warehouse ratio, ample yard space, ASIB 12th Edition fire sprinklers, a minimum eaves height of 14m and a combination of on grade and docking height roller shutter doors. Designed to cater to various manufacturing, storage and logistical requirements, offers exciting potential for increased energy and water efficiencies and lower operating costs

Property Type
House
Building Size
8,482m²
Reference
PC1426936
Property history
Listed to rent at R1,272,300
26 Aug 2025
Get to know Hillcrest
With its location high above Durban and an array of schools and amenities, Hillcrest is benefiting from the major development it has seen in the past 2 decades. what was once a sleepy village has been transformed into one of Durban’s most popular suburbs with an array of great schools and a wealth of shopping facilities.
By clicking on "contact" you agree to our privacy policy
Contact Agent
What will my home insurance cost?
Get an instant contents insurance quote for this bedroom property in Shongweni
Get my price
Cover powered by
Authorised FSP
What will my move cost?
Calculate your moving costs to Shongweni with the help of our moving partners.
Get quotes
Moving powered by
Property questions?
Get quick answers about buying, selling, renting, and more from our AI powered real estate bot