R47,631
per month

Industrial to rent in Samrand Business Park

67 Sterling Road
529m²
529m²
Brand New Warehouse Development In Samrand

Available now! Book a private viewing today.

Sizes available- From 407 m2 - 1400 m2.

Brand new flagship development strategically located in Samrand. SilverView will be the premium business park in the node offering a premium setting for your light industrial and warehousing needs. The park consists of 17 industrial units ranging in size. Samrand is a new industrial and commercial precinct with an aim to bridge the gap between, Johannesburg, Pretoria and Centurion in terms of industry and commerce.

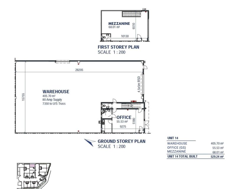
Size breakdown on this unit:

Warehouse: 405m2

Mezzanine: 68m2

Office: 55m2

Yard: 0m2

Key features:

- Client customised design

- Backup water supply

- State of the art 24-hour security

- Modern design and landscaped grounds

- Truck Access

Samrand is located alongside the bustling N1 highway, meaning that this developing node is within close proximity to Gauteng .The nearest major urban area is Centurion.

This industrial unit offers office and warehouse space making it the perfect choice for distribution operations. Office space, bathroom and kitchen are provided.

A well managed and clean park offering great security.

There are parking bays in front to utilise.

Excluding:

-VAT

-Utilities

-Deposit (R142, 893)

Property Type
Industrial
Stand Size
529m²
Building Size
529m²
Levy
R1
Available From
02 Dec 2025
Reference
2435474
Security
yes
Address
67 Sterling Road
Property history
Listed to rent at R47,631
02 Dec 2025
Get to know Centurion
The first thing you will notice about Centurion is that despite its ever-expanding urban landscape, there is a sense of community that many large cities lack. It is world class conveniences woven into a small town fabric to create one of Gauteng’s most vibrant up-and-coming areas. This is a family orientated area that caters for young professionals in the newer extensions, as well as retirees in the older suburbs of Centurion.
By clicking on "contact" you agree to our privacy policy
Contact Agent
What will my move cost?
Calculate your moving costs to Samrand Business Park with the help of our moving partners.
Get quotes
Moving powered by
Property questions?
Get quick answers about buying, selling, renting, and more from our AI powered real estate bot