Save
Notify Similar
R8,375,000

Retail for sale in Riverside Park

4,652m²
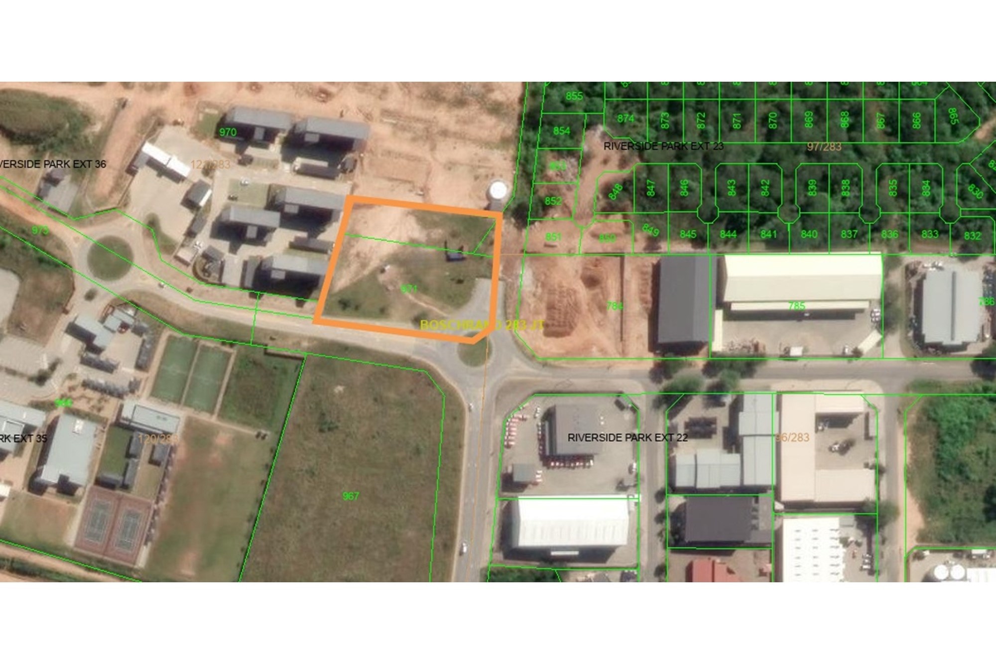
Commercial / Retail In Riverside Park

Situated close to Curro Riverside Campus and several residential clusters, this Commercial / Retail opportunity is ready for development

The corner stand offers good visibility and road access with a easy slope making it ideal for a small retail cluster development

Property details:

Zoning - Business / Retail

Size - 4652 m2

Floor Area Ratio - 50% up to 3 stories high

Service contributions - Fully paid

Sales Price - R8,375,000 Vat Excl.

Rates - To be determined

Property Type
Retail
Stand Size
4,652m²
Reference
7002001-94672
Property history
Listed for sale at R8,375,000
25 Jul 2025
Get to know Nelspruit
Nelspruit, the capital of Mpumalanga, lies in the fertile valley of the Crocodile River. Nelspruit is so much more than just a gateway to Mpumalanga and the Kruger National Park.
By clicking on "contact" you agree to our privacy policy
Contact Agents
What will my move cost?
Calculate your moving costs to Riverside Park with the help of our moving partners.
Get quotes
Moving powered by
Property questions?
Get quick answers about buying, selling, renting, and more from our AI powered real estate bot