Save
Notify Similar
R1,200,000

Vacant Land Residential for sale in Port Alfred Central

10,787m²
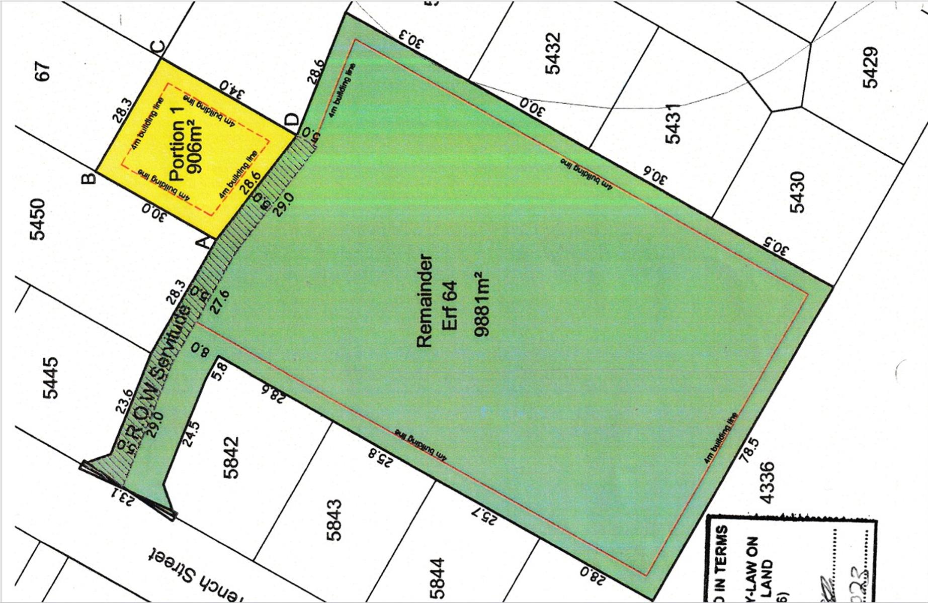
Prime Development Opportunity - Erf 64, Port Alfred

Prime Development Opportunity – Erf 64, Port Alfred

Perfectly positioned within walking distance of the Kowie River and the Port Alfred Sports Estate, this expansive 9,843m2 property offers endless potential in one of Port Alfred’s most sought-after locations.

Zoned Residential Zone 3, the erf allows for a wide range of uses – from general residential buildings to care facilities, crèches, home enterprises, restaurants, medical or social facilities – making it an excellent investment for developers or visionaries looking to create something truly special.

The property enjoys a peaceful setting surrounded by established homes and natural greenery, with easy access to town, schools, and local amenities. Whether you’re considering a lifestyle estate, residential development, or a mixed-use project, this versatile erf provides the space and location to bring your plans to life.

Contact agent for more details.

Property Type
Vacant Land Residential
Stand Size
10,787m²
Reference
PC1449327
Property history
Listed for sale at R1,200,000
06 Sep 2025
Get to know Port Alfred
The historically beautiful town of Port Alfred is a delightful mixture of laid-back coastal living and world-class facilities.
By clicking on "contact" you agree to our privacy policy
Contact Agents
MP home loans expert Michael-Anne
Get expert home loan assistance with Michael-Anne
Ask me a question
What will my move cost?
Calculate your moving costs to Port Alfred Central with the help of our moving partners.
Get quotes
Moving powered by
Property questions?
Get quick answers about buying, selling, renting, and more from our AI powered real estate bot