Save
Notify Similar
R35,000,000

Vacant Land Residential for sale in Northvale Ah

243,015m²
Vacant Land Residential For Sale In Northvale Ah

Cradlegate, West Rand

Marketed by Anouschka & Johnathan Lubbe – Keller Williams Advance

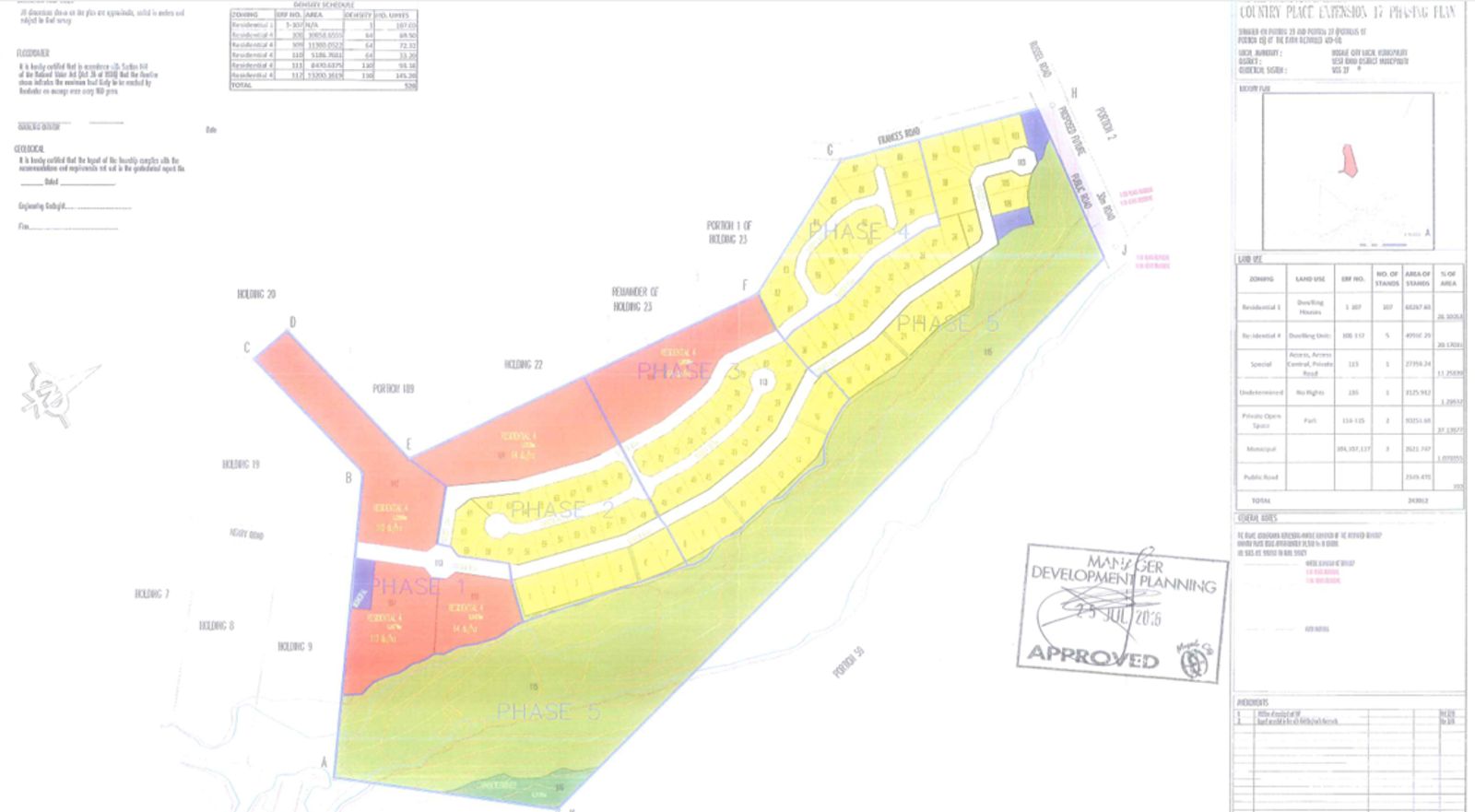
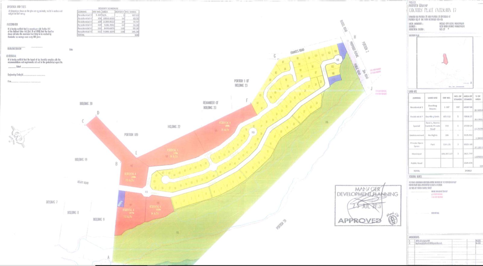
A rare and remarkable opportunity presents itself with this 25-hectare parcel of prime mixed-use development land, perfectly positioned in the rapidly expanding Cradlegate Growth Corridor, directly opposite the well-established Pine Haven community. This property offers the scale, zoning, and strategic location developers seek when planning a landmark project in one of Gauteng’s most promising growth nodes.

Development Overview

Approved for up to 600 units, this expansive site is meticulously structured for a five-phase development, providing flexibility and long-term scalability. The property’s mixed-use zoning opens the door for a variety of residential configurations, complemented by possible retail or lifestyle components that enhance liveability and community appeal.

All compliance certificates are in place, and a complete set of development documentation is available for review — ensuring a transparent and fully compliant transaction process. All municipal services are available to the site, with bulk contributions applicable.

Key Investment Highlights

Size: 25 Hectares

Zoning: Mixed-use development

Approval: Up to 600 residential units across five phases

Compliance: All certifications and documentation in hand

Services: Water, electricity, and sewerage available (bulk contributions required)

Access: Conveniently located with easy connectivity to Hendrik Potgieter Road and the N14 Highway

Location: Directly opposite Pine Haven, in a high-demand residential expansion zone

Strategic Location

Cradlegate has emerged as one of the West Rand’s most dynamic and fast-developing areas. With major infrastructure upgrades, growing commercial activity, and an increasing influx of families seeking modern, secure living environments, this location offers unparalleled potential for capital growth and sustained demand.

The surrounding area features established shopping centres, reputable schools, healthcare facilities, and recreational amenities — all contributing to an attractive, self-sustaining community environment ideal for mixed-use development.

The Opportunity

This is more than just a development site — it’s a platform to create a legacy precinct that redefines the future of urban living in the West Rand. Whether envisioned as a contemporary residential estate, a mixed-use lifestyle hub, or a carefully phased long-term project, the foundation has already been laid for success.

With strong projected returns, favourable zoning, and a clear pathway to immediate development, this is an opportunity not to be missed.

Contact Anouschka or Johnathan Lubbe today for a confidential discussion, full due diligence documentation, and to schedule a site visit.

Property Type
Vacant Land Residential
Stand Size
243,015m²
Rates & Taxes
R1,000
New Development
Yes
Reference
ENT0307157
Property history
Listed for sale at R35,000,000
15 Oct 2025
Get to know Krugersdorp
Krugersdorp has often been described as the treasure chest of the West with its wide array of residential and commercial properties available while being surrounded by some of the richest archeological areas in South Africa.
By clicking on "contact" you agree to our privacy policy
Contact Agents
MP home loans expert Michael-Anne
Get expert home loan assistance with Michael-Anne
Ask me a question
What will my move cost?
Calculate your moving costs to Northvale Ah with the help of our moving partners.
Get quotes
Moving powered by
Property questions?
Get quick answers about buying, selling, renting, and more from our AI powered real estate bot