Save
Notify Similar
R1,293,662
per month

Industrial to rent in North Riding

3 Baths
15,853m²
23,593m²
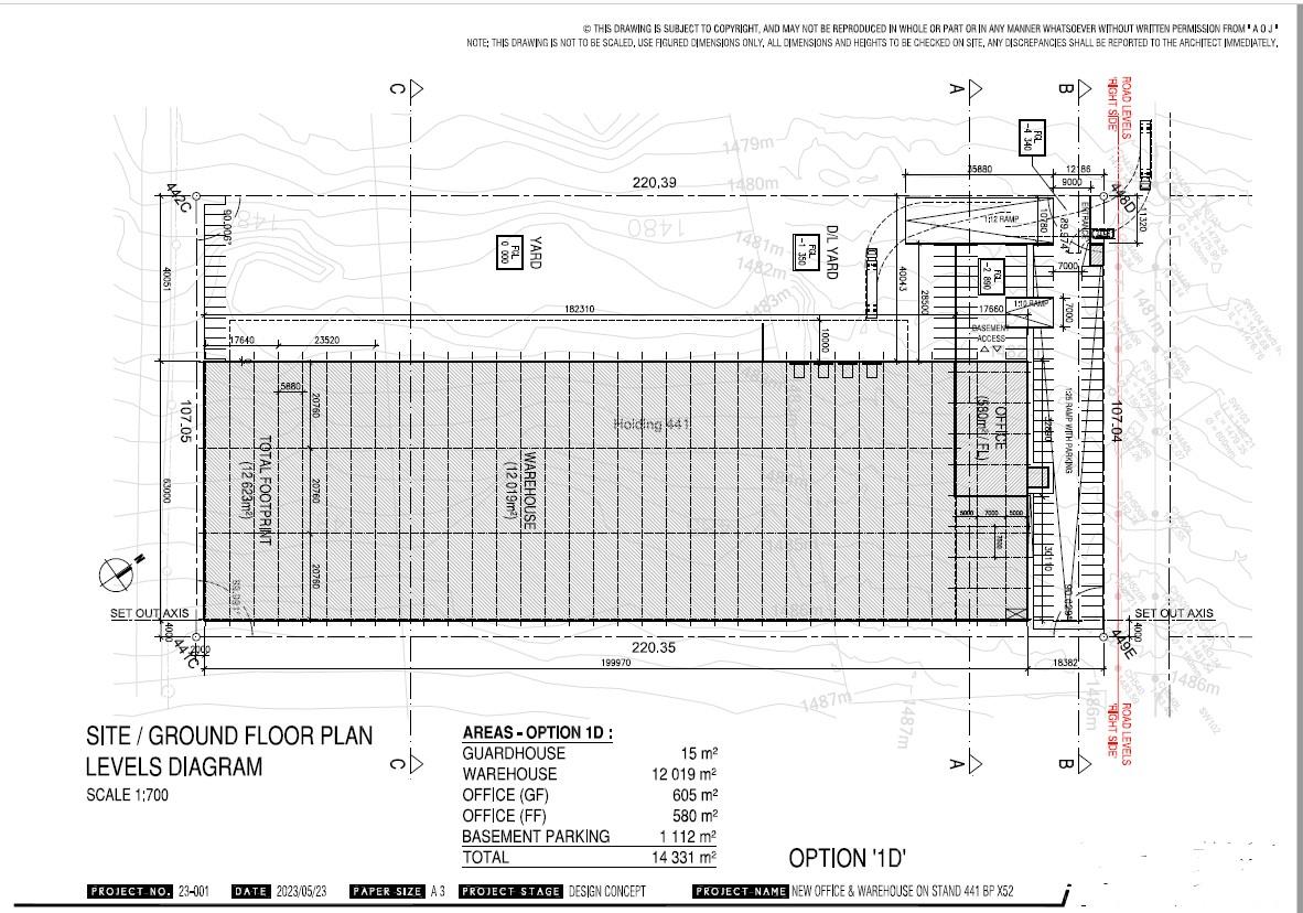
15 853m2 Warehouse - To Let

This warehouse/offices development will be made available 1st July 2026 and is situated in Boundary Park at the corner of Witkoppen and Malibongwe Drives. The plans and renderings are basic and can be altered to suit the clients needs should the client become available sufficiently early to make the necessary changes.

Boundary park is a reasonably new park and only consists of large warehouses. The owners only build high end spec warehouses. The attached pics are only an indication of the type of design that is found at Boundary Park.

Boundary park is well located with access to the N14 or the N1 within quick reach providing the incumbent access to the whole of the Rand.

Warehouse 11778m2

Offices 2765m2 The office component may be altered to suit the incumbent

Basement parking 1310m2

Total 15 853m2

Up to 1 MVA of electrical power available.

Note: There are another 6 planned developments of smaller warehouses should this unit not fit your requirements. Please contact me should you require a smaller unit.

Property Type
Industrial
Bathrooms
3
Stand Size
23,593m²
Building Size
15,853m²
Reference
CL1101
Property history
Listed to rent at R1,293,662
30 Mar 2025
Get to know Randburg
Residential property for sale in the Randburg area can be classified into houses, townhouses, clusters, flats, apartments, small holdings and vacant land. The large variety of property available in the area means that Randburg and its suburbs have seen a steady growth in property sales.
By clicking on "contact" you agree to our privacy policy
Contact Agent
What will my move cost?
Calculate your moving costs to North Riding with the help of our moving partners.
Get quotes
Moving powered by
Property questions?
Get quick answers about buying, selling, renting, and more from our AI powered real estate bot