Save
Notify Similar
R38,000,000

Office for sale in Menlo Park

3,000m²
Invest In Iconic - The Landmark West

Where vision meets opportunity, and infrastructure meets intention.

Loadshedding-Ready | Prime Menlyn Node | High-Yield Opportunity

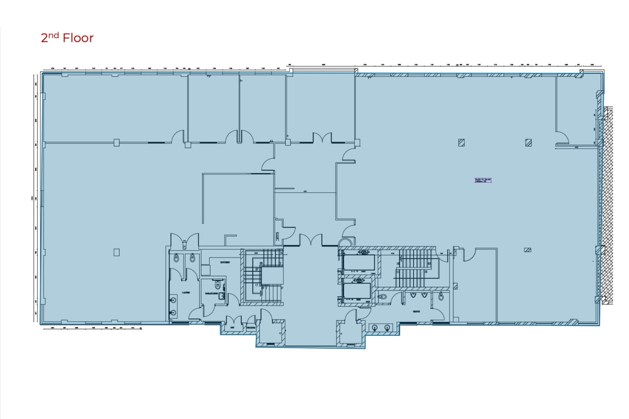
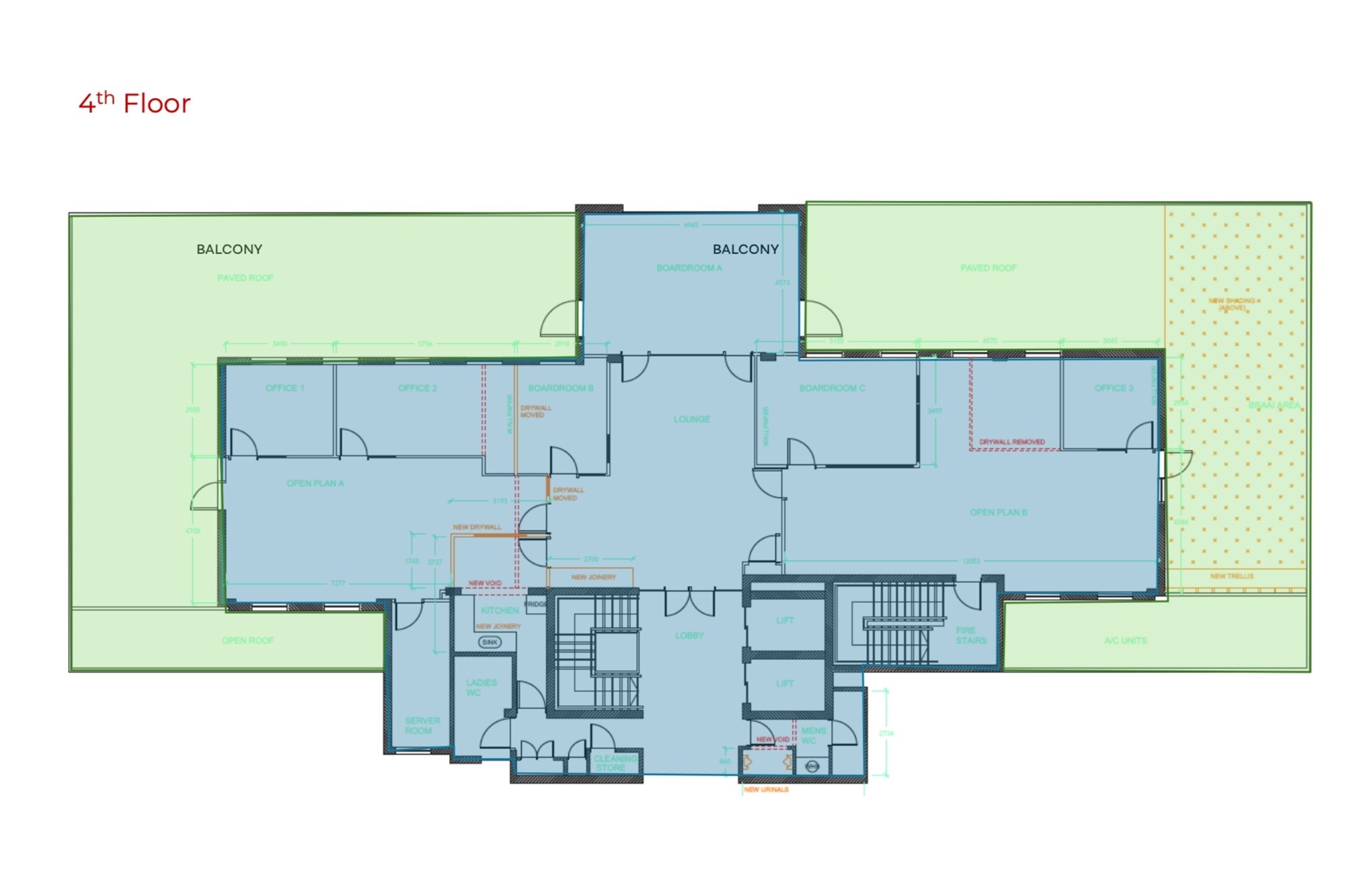
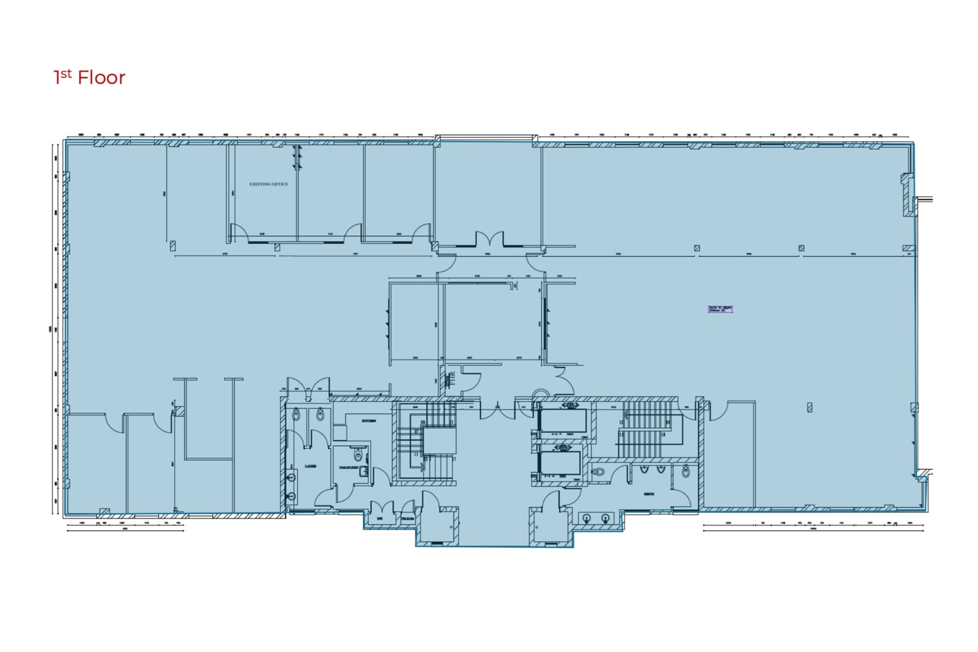
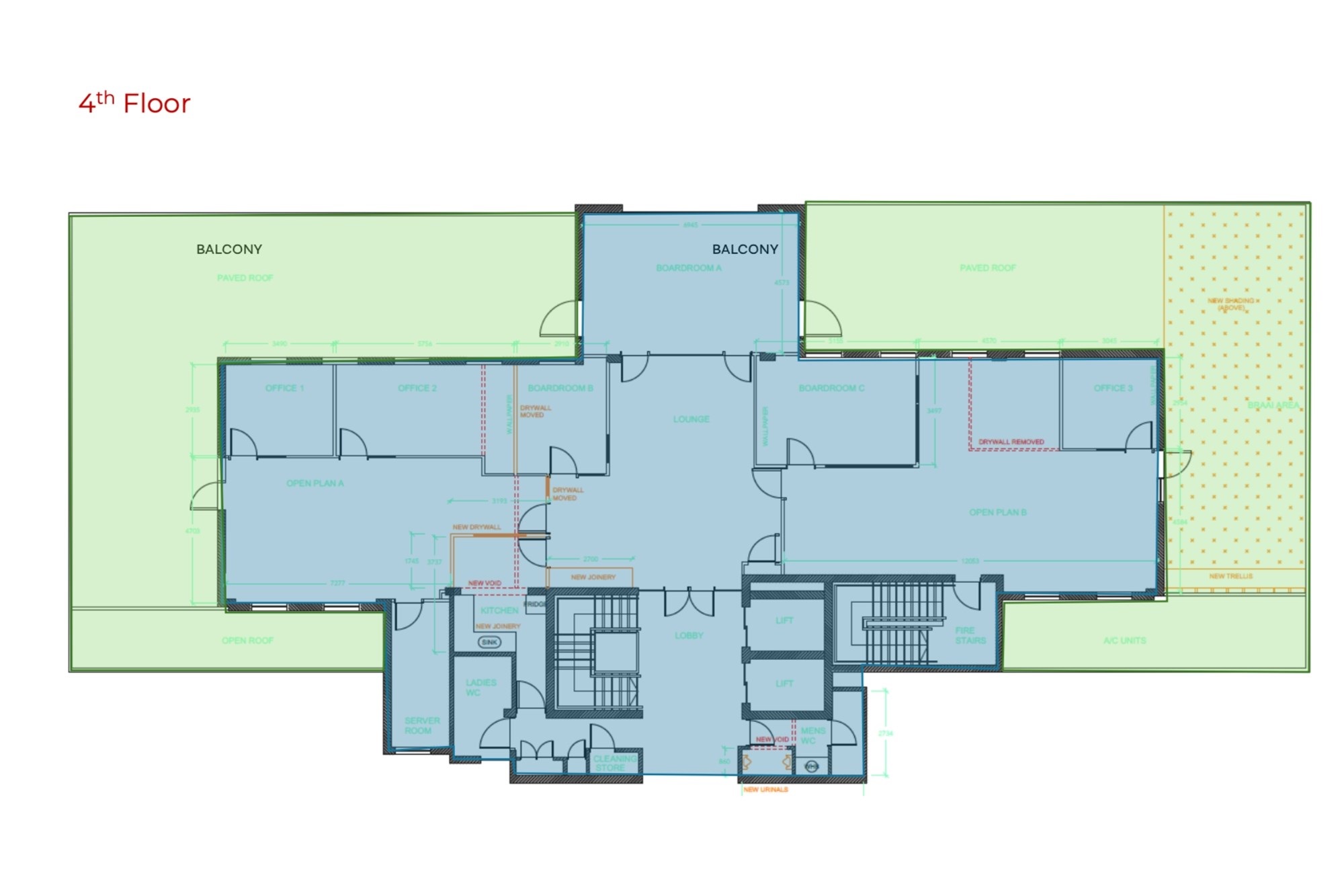
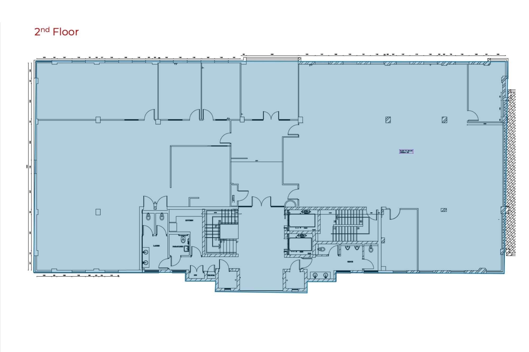
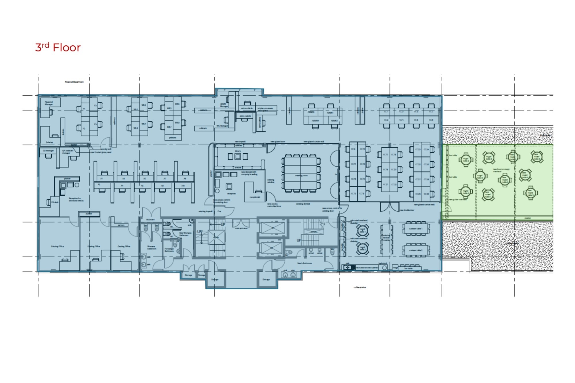
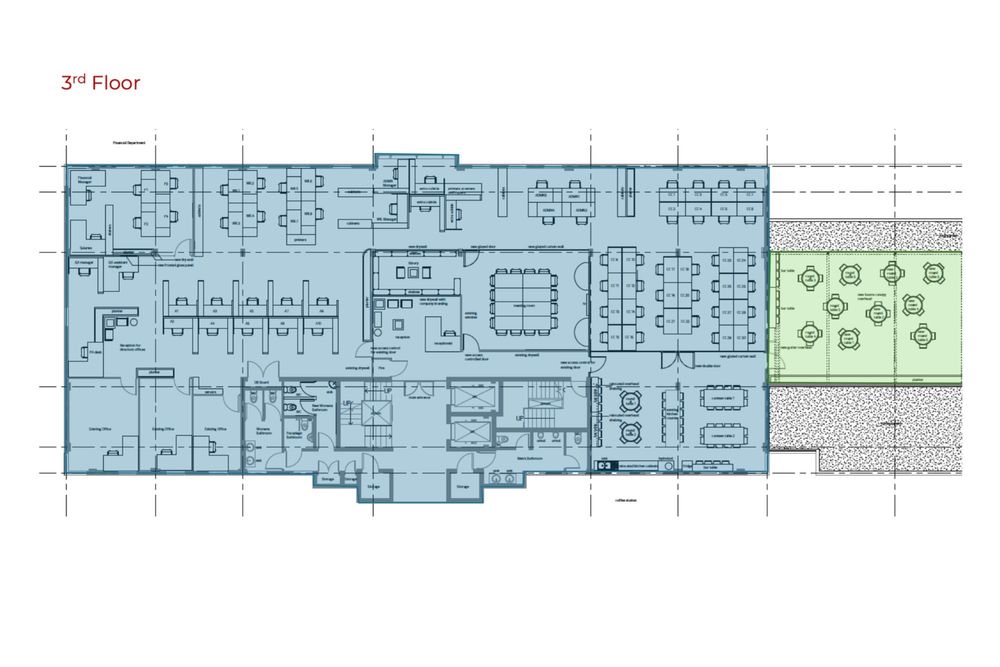
Step into a commercial future designed for resilience and return. The Landmark West, a highly sought-after corporate address, is nestled in the flourishing business heart of Menlo Park, just off Atterbury Road. This premium sectional title office building spans over 3,006 m2 GLA, offering A-grade space with a compelling combination of strategic location, modern infrastructure, and powerful tenant demand.

With 78% current occupancy, a potential yield of up to 12.4%, and gross building area of 4,600 m2, this is more than a property—it’s a portfolio-defining asset.

The Offering:

·3,006 m2 Gross Lettable Area

·134 Secure Parking Bays

·106 x Basement

·18 x Shaded

·10x Streetside

·Solar PV System – offsetting energy dependencyBackup Generator – uninterrupted operations during power outages

·Central Air-Conditioning throughout

·High-Speed Fibre Internet – ready for immediate connection

Sectional Title Ownership – flexible asset strategy

Zoning: Special – unique usage potentialCommunal Kitchenettes + Ablutions on all floorsTwo Elevators – wheelchair accessible

The Experience:

·The building has been recently upgraded and offers tenants:

·Contemporary tiled and carpeted finishesWheelchair-friendly accessibility via modern elevators

·On-site security with 24-hour access control and CCTV surveillance

·Elegant foyers and professionally maintained common areas

·Flexible tenant layouts in a multi-tenanted configuration

·Current occupancy of 2,342 m2, generating immediate income

·Communal spaces promoting productivity and ease of operation

The Location: Atterbury Exposure Without Atterbury Traffic

Set just off the bustling Atterbury Road but discreetly accessed via Umgazi Street, Landmark West enjoys a unique positioning: high visibility without the chaos. From this vantage, businesses benefit from:

Immediate access to Menlyn, Brooklyn, and Lynnwood

Proximity to Glenfair Boulevard, The Club, Hazelwood Village, and Menlyn Park Shopping Centre

Direct routes to the N1 highway and public transport networks

Surging development in the area—boosting long-term commercial and retail demand

Why This Investment?

Strategic Location – anchored in Pretoria’s most rapidly evolving economic hub

Resilient Infrastructure – solar and generator-equipped

Sustainable Income – stable tenancy with room for increased returns

Prime Visibility – streetside exposure and signage opportunityGrowth Potential – backed by Menlo Park`s high development trajectory

Financial Snapshot

Price: Excludes VAT

Current ROI: 7.6% (with scalable upside to 12.4%)

Tenancy: 99% building-wide, with two small vacancies

Parking Ratio:

Meets institutional requirement (4 bays per 100m2)

A Rare Commercial Jewel Awaits

This is not just a building—it’s an investment in stability, growth, and visibility in Pretoria’s premier corporate corridor.

For full investor packs and private viewings, contact Dreamscape Realty powered by eXp.

Serious buyers only. Discretion assured.

Dreamscape Realty powered by eXp— Refining the way you invest in property.

Property Type
Office
Building Size
3,000m²
Reference
PC1424993
Property history
Listed for sale at R38,000,000
26 Aug 2025
Get to know Pretoria
Situated in the Northern part of Gauteng, Pretoria offers residents a melting pot of culture, tradition, history and first world commerce.
By clicking on "contact" you agree to our privacy policy
Contact Agent
What will my move cost?
Calculate your moving costs to Menlo Park with the help of our moving partners.
Get quotes
Moving powered by
Property questions?
Get quick answers about buying, selling, renting, and more from our AI powered real estate bot