Save
Notify Similar
R2,850,000

House for sale in Hopefield Central

645m²
1,555m²
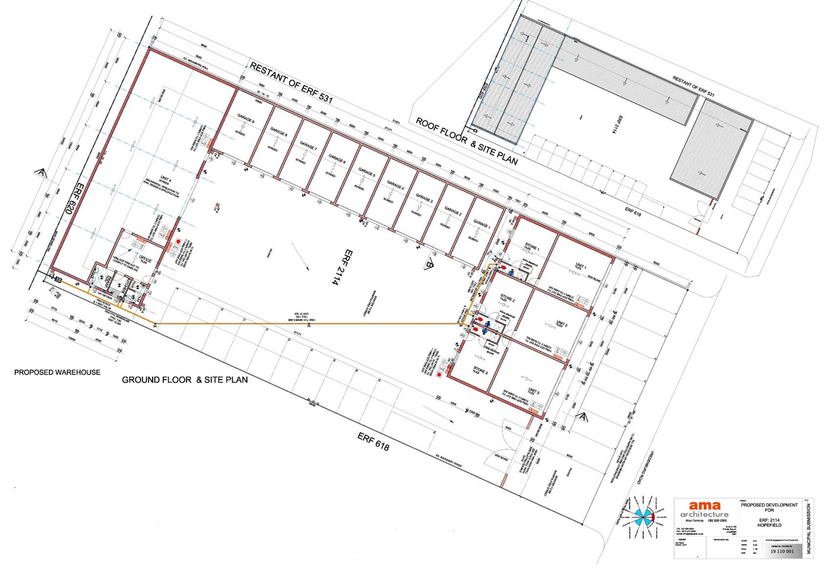
Prime Light Industrial Development Opportunity - Hopefield, West Coast

Sole & Exclusive Mandate

An exceptional investment opportunity in the rapidly growing town of Hopefield. This 1556 m2 property is zoned Light Industrial and has fully approved development plans, offering multiple income-generating components in a prime location—just 500 m from Hopefield town centre and only 1 hour from Cape Town.

With significant growth in the area driven by the new multiple developments, the demand for commercial and storage facilities is at an all-time high. This property is perfectly positioned to capitalise on that demand and generate excellent rental returns.

*Proposed Approved Development Includes:

*Large warehouse / storeroom ±245 m2 - Already Constructed

Includes separate office, kitchen and 2 bathrooms

*9 Storage garages ±23 m2 each – to be build

*3 Storerooms ±25 m2 each – to be build

Each fitted with a shower, basin, toilet and kitchen

*3 Street-front retail shop units ±65 m2 each – to be build

*Additional capacity to construct 7 more storage/garage units on the opposite side of the property

*Key Features & Benefits

*Municipal building plan already approved

*Highly versatile layout allowing multiple rental channels

*Shortage of light commercial facilities in Hopefield and surrounding towns

*Strong projected rental demand & long-term capital growth

*Easy access and excellent visibility from the main road

Whether you’re a developer, investor, or business owner looking to expand—this property offers endless potential and immediate value.

Ready to Invest or View? This is a rare opportunity in a fast-growing region.

Get in touch today to discuss the figures, view the plans, or arrange a site visit. Invest in the future growth of Hopefield – opportunities like this don’t come often.

Property Type
House
Stand Size
1,555m²
Building Size
645m²
Reference
PC1488427
Property history
Listed for sale at R2,850,000
20 Nov 2025
By clicking on "contact" you agree to our privacy policy
Contact Agent
MP home loans expert Michael-Anne
Get expert home loan assistance with Michael-Anne
Ask me a question
What will my building insurance cost?
Get an instant building insurance quote for this bedroom property in Hopefield Central
Get my price
Cover powered by
Authorised FSP
What will my move cost?
Calculate your moving costs to Hopefield Central with the help of our moving partners.
Get quotes
Moving powered by
Property questions?
Get quick answers about buying, selling, renting, and more from our AI powered real estate bot