Save
Notify Similar
R61,920
per month

House to rent in Glen Anil

516m²
Highly Sought After New Development Warehouses.

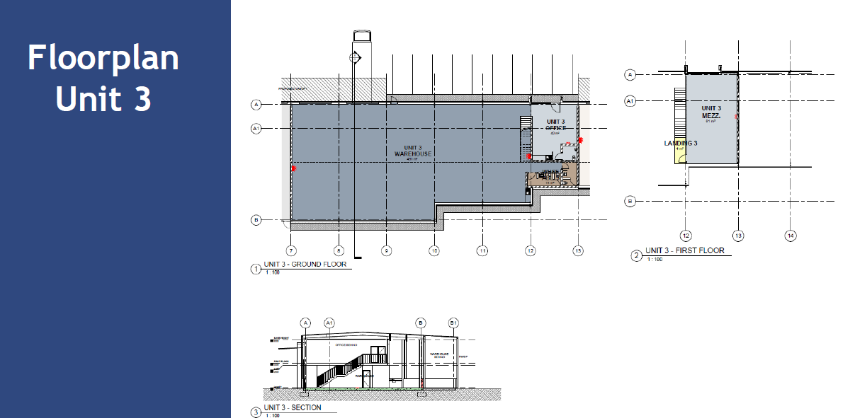
Stunning N2 visibility new warehouse development offering everything you need. Unit 1 Unit 2 Unit 3 Warehouse 588m2 392m2 431m2 Ablutions 16m2 16m2 15m2 Ground floor office 54m2 42m2 42m2 Mezzanine 78m2 66m2 65m2 Sub total 736.00m2 516.00m2 553.00m2 Total area 1,805.00m J2 occupancy (Chemical hazard building). Strategically located within the heart of the Glen Anil Industrial Precinct and overlooking the N2 Freeway with excellent visibility and access, this new industrial development offers 3 x new A-grade mini unit warehouses ranging in size from 500 – 750m2. In addition, there is a dedicated concrete hardstand yard for all units, providing ample access for the manoeuvrability of large vehicles and parking. The N2 facing façade of the building will provide an excellent signage opportunity to each tenant to promote their respective brands. Previously the site of a private heliport, the land is the perfect location for an expansion of the already successful and sought-after Greystone Industrial Park. Each warehouse will have its own offices and ablution facilities as well as large canopies to all roller shutter doors to ensure adequate weather protection at loading areas. Call me to get you signed up for occupation 1 December 2024.

Property Type
House
Building Size
516m²
Reference
PC1426938
Property history
Listed to rent at R61,920
26 Aug 2025
Get to know Durban North
Durban North is a popular and well-established suburb known for its prime coastal location, beautiful beaches, and a mix of residential and commercial properties.
By clicking on "contact" you agree to our privacy policy
Contact Agent
What will my home insurance cost?
Get an instant contents insurance quote for this bedroom property in Glen Anil
Get my price
Cover powered by
Authorised FSP
What will my move cost?
Calculate your moving costs to Glen Anil with the help of our moving partners.
Get quotes
Moving powered by
Property questions?
Get quick answers about buying, selling, renting, and more from our AI powered real estate bot