Save
Notify Similar
R4,290,000

Commercial for sale in Gezina

1,143.84m²
Prime Mixed-use Investment Opportunity – Steve Biko Street, Gezina (1,143?m2 Site)

Overview

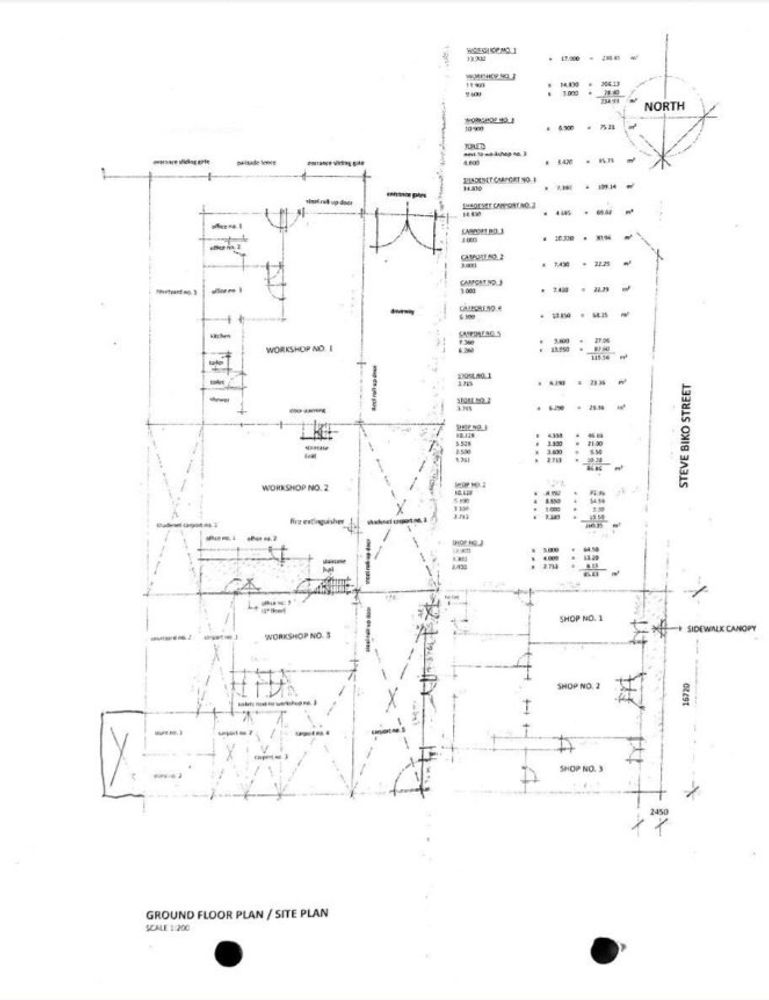
Unlock high-traffic exposure with this strategically configured “L-shaped” commercial asset. Fully fenced with secure sliding gates, the property presents dual-access points and is subdivided to optimize rental yield across retail, workshop, and office segments. A fully titled parcel of approximately 1,143.84?m2, it’s poised for immediate cash flow and long-term capital appreciation

Ground-Floor Retail (Street-Facing)

Shop 1 (86.86?m2) – Includes private WC

Shop 2 (160.35?m2)

Shop 3 (85.83?m2) – Includes private WC

Ideal for lease-up to diverse tenants such as convenience retail, quick-service food, or boutique services—commanding premium rent due to frontage on Steve Biko Street

Workshop & Light Industrial Units

Workshop 1 (248.81?m2) – Comes with 3 private offices, kitchen, 2 toilets, shower & exclusive courtyard

Workshop 2 (234.93?m2) – Includes 2 offices

Workshop 3 (75.21?m2) – Adjacent shared amenities, courtyard of 15.73?m2

These units cater to service-based trades, light manufacturing, or flexible office–warehouse hybrid setups, enhancing tenant diversity and resilience.

First-Floor Expansion – ̃450?m2

Rigidly adaptable as additional office suites or secure storage—this area supports portfolio scaling or plug-and-play tenant occupancy.

Parking & Ancillary Infrastructure

Shaded carports: 109.14?m2 & 69.62?m2

Open bays: 30.96?m2, two at 22.29?m2, plus 68.23?m2 & 115.56?m2

2 storage units (total 23.36?m2)

Prime leasing potential for commercial tenants or supplementary parking revenue.

Security & Competitive Edge

Secure palisade fencing and dual sliding gates ensure tenant peace of mind

High-visibility signage opportunities across all street-front façades

Strategic layout enhances foot traffic and operational flow

Investor Highlights Feature Advantage:

Multi-tenanted layout, Diverse income streams; risk mitigation

Modular configuration, Lease up or occupy, scale as needed

Premium street exposure, Enhanced rental rates & brand visibility

Future growth-ready, First-floor conversion for additional revenues

Low capex required, Fully subdivided & lettable; ready for ROI immediately

Summary

This property presents a rare, turn-key commercial investment: prime traffic exposure, diverse income channels, scalable office/workshop space, and immediate monetization potential. It’s a compelling play for any investor or owner-operator aiming to leverage multi-use footfall and rental upside in the Gezina corridor.

Property Type
Commercial
Stand Size
1,143.84m²
Available From
09 Jul 2025
Reference
2398960
Estimated monthly costs
Understand your true monthly costs by factoring in your loan repayments, utilities, rates & taxes and levies where applicable and supplied by the agent.
R42,830
Home loan repayment
R42,830
Utilities
Enter your estimated monthly utility costs for a property like electricity & water, this will be added to your total estimated monthly costs. This is saved and displayed on other listings you browse.
R0
Property history
Listed for sale at R4,500,000
09 Jul 2025
Price reduced by 4.7% to R4,290,000
10 Jul 2025
Get to know Pretoria
Situated in the Northern part of Gauteng, Pretoria offers residents a melting pot of culture, tradition, history and first world commerce.
By clicking on "contact" you agree to our privacy policy
Contact Agent
What will my move cost?
Calculate your moving costs to Gezina with the help of our moving partners.
Get quotes
Moving powered by
Property questions?
Get quick answers about buying, selling, renting, and more from our AI powered real estate bot
Residential
House
Townhouse
Apartment, Penthouse
Retirement Village
Vacant Land
Agricultural
Farm
Small Holding
Vacant Land
Commercial
Office, Retail, Mixed Use
Industrial
Vacant Land
Hospitality