Save
Notify Similar
R8,890,000

Vacant Land Residential for sale in Eye Of Africa

492m²
1,304m²
From Vision To Reality. Secure Your Stand In Eye Of Africa

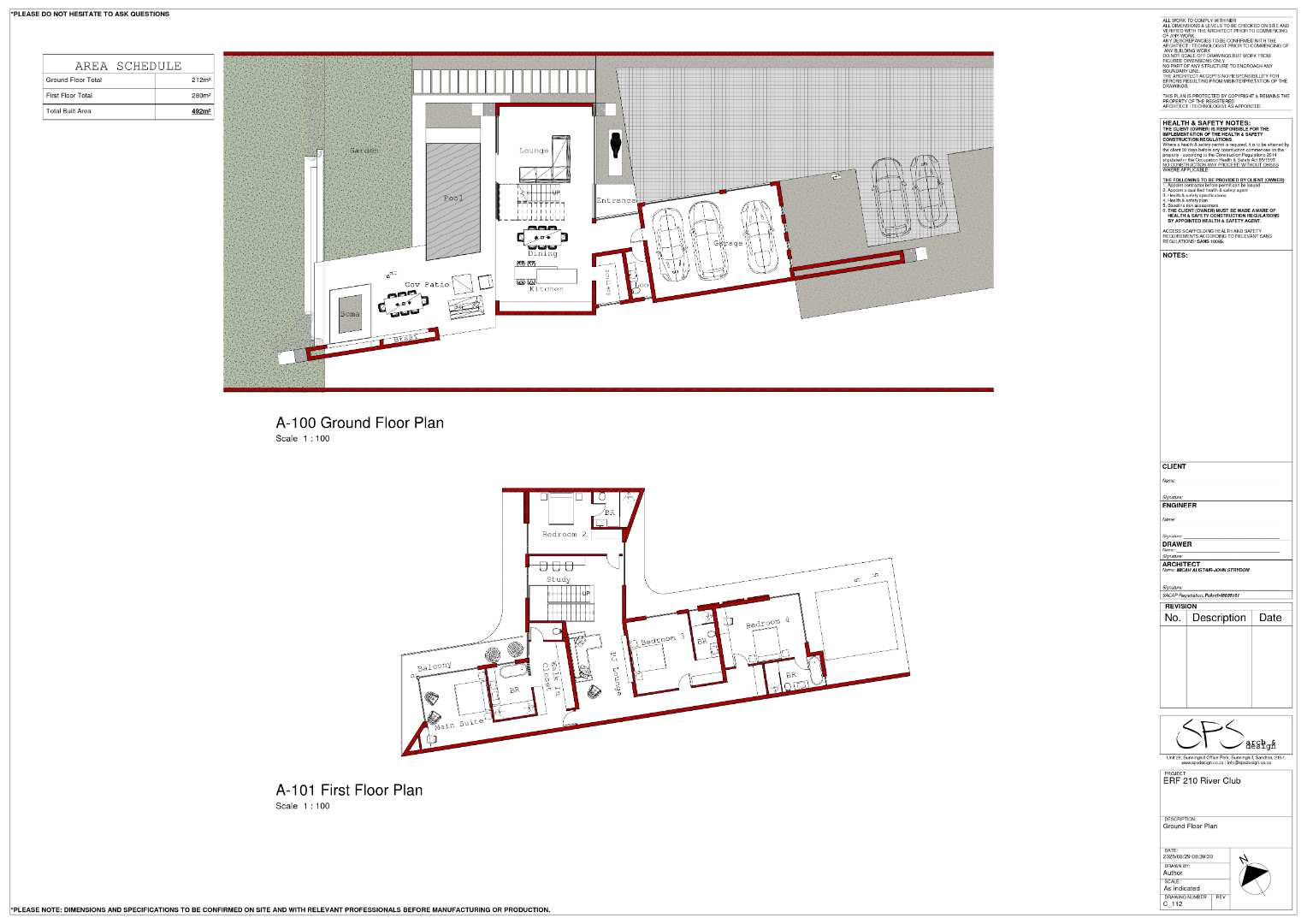
A bold new vision is rising at Eye of Africa—an ultra-modern sanctuary designed by SPS Architects and exclusively marketed by Urbantrend Group. With a build price of R7.2 million and a 12-month completion timeline, this 492m2 concept home is a rare opportunity to shape your future in one of South Africa’s most iconic estates.

From the moment you arrive, the triple garage and expansive driveway set the tone for effortless luxury. Inside, a chef’s kitchen with adjoining scullery anchors the open-plan living and dining areas, all flowing seamlessly onto a large covered patio. Here, a sparkling pool and boma invite sunset gatherings, weekend braais, and tranquil mornings surrounded by nature.

Upstairs, four en suite bedrooms offer privacy and sophistication, complemented by a cozy PJ lounge and a private study—perfect for work, reflection, or retreat. Every detail has been curated to elevate daily living, from the architectural angles to the natural finishes.

Vacant Land R1.690 million

Build – R7.2 million

492m2 underoof

3 garages and large driveway

Kitchen and scullery

Lounge

Dining area

Large covered patio

Pool and boma

4 bed all en suite

Pj Lounge

Study

To ensure this home reaches its full potential, the sales team at Eye of Africa will hand-select a premium stand that complements the design, maximizing views, privacy, and orientation. This is more than a home—it’s a lifestyle statement, crafted for those who lead, not follow.

Property Type
Vacant Land Residential
Stand Size
1,304m²
Building Size
492m²
Reference
2415269
Property history
Listed for sale at R8,890,000
01 Sep 2025
By clicking on "contact" you agree to our privacy policy
Contact Agents
MP home loans expert Michael-Anne
Get expert home loan assistance with Michael-Anne
Ask me a question
What will my move cost?
Calculate your moving costs to Eye Of Africa with the help of our moving partners.
Get quotes
Moving powered by
Property questions?
Get quick answers about buying, selling, renting, and more from our AI powered real estate bot