Save
Notify Similar
R1,800,000

Vacant Land Residential for sale in Dana Bay

982m²
Pets Allowed
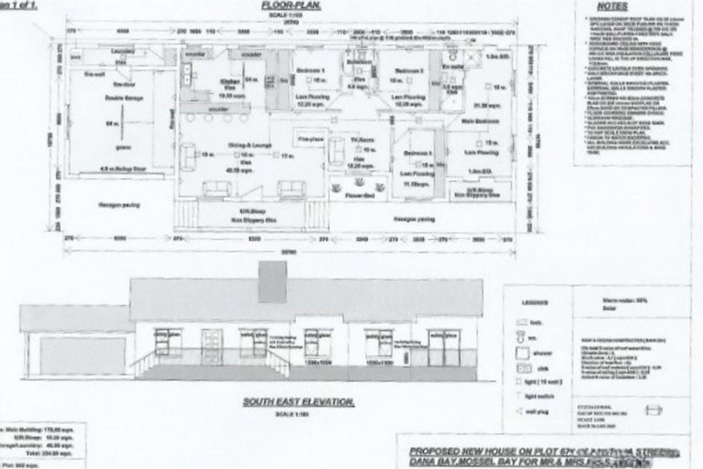
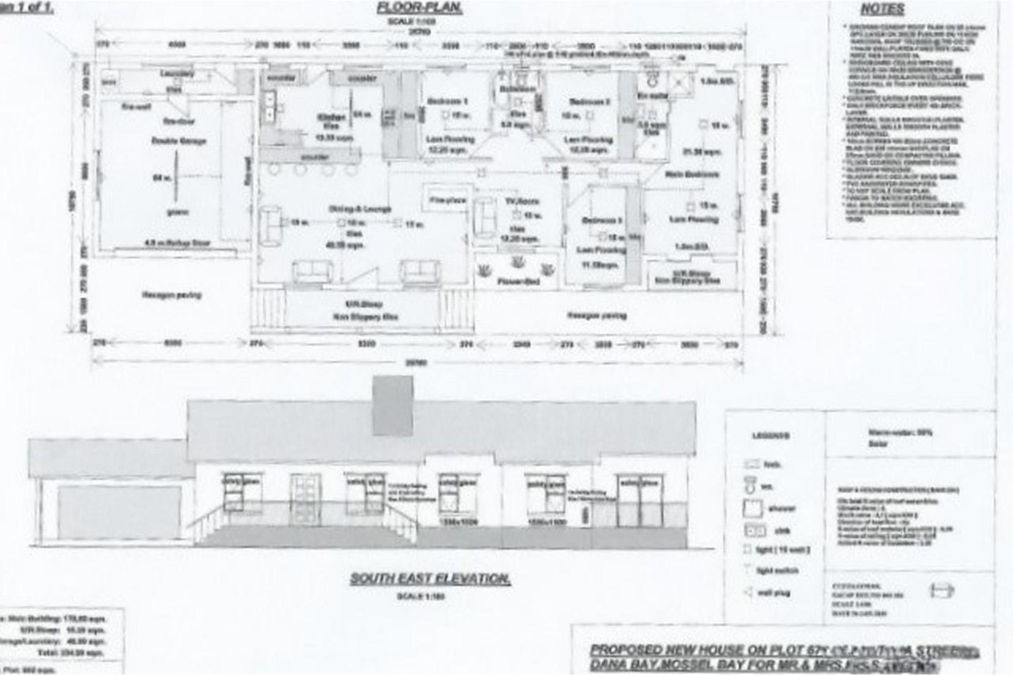
Discover Your Dream Home At Dana Bay

Discover the perfect opportunity to build your dream home on this spacious vacant land, located in the sought-after area of Dana Bay, Mossel Bay, Western Cape.

With a generous land size of 982m2, this property offers ample space for your creative vision to come to life.

The land is pet-friendly, making it an ideal choice for families with furry companions.

Enjoy a lifestyle that embraces the beauty of nature while having the convenience of modern amenities nearby.

In addition to its prime location, this property comes with building plans and completed foundations, allowing you to save time and start your construction project without delay.

Embrace the chance to create a home tailored to your lifestyle in this serene coastal community.

Property Type
Vacant Land Residential
Stand Size
982m²
Pets Allowed
Yes
Reference
PC1437342
Property history
Listed for sale at R1,650,000
26 Aug 2025
Price increased by 9.1% to R1,800,000
16 Jan 2026
Get to know Mossel Bay
Mossel Bay, located along South Africa’s scenic Garden Route in the Western Cape, is a coastal town known for its blend of natural beauty, rich history, and modern amenities. With a strong tourism sector, family-friendly atmosphere, and appealing lifestyle options, Mossel Bay has become an attractive destination for property buyers, retirees, and investors looking to enjoy coastal living while still benefiting from urban conveniences.
By clicking on "contact" you agree to our privacy policy
Contact Agent
MP home loans expert Michael-Anne
Get expert home loan assistance with Michael-Anne
Ask me a question
What will my move cost?
Calculate your moving costs to Dana Bay with the help of our moving partners.
Get quotes
Moving powered by
Property questions?
Get quick answers about buying, selling, renting, and more from our AI powered real estate bot