Save
Notify Similar
R4,430,000

3 bedroom house for sale in Broadacres

3 Beds
3 Baths
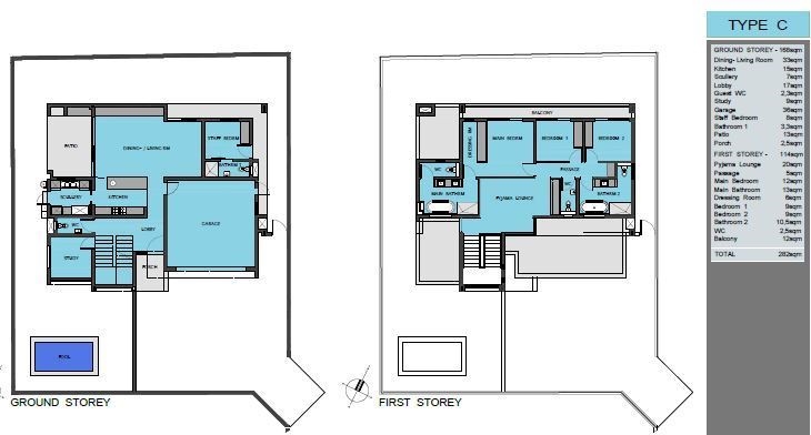
282m²
396m²
Pets Allowed
Secure Estate Development -the Kingsley

Looking for an ultra modern, concrete, glass and steel home in a secure estate in the heart of Fourways?

35 Stands between 348m2 and 515m2 to choose from. All the luxurious, finished homes are 282m2. Option for a 306m2 home with 4 bedrooms.

Ground level contains the living areas, including a covered patio, study, guest suite / domestic quarters and double garage. Upstairs features a pajama lounge with 3 or 4 bedrooms

Buy directly from the developer and pay no transfer duty. Sold on plot and plan basis.

Property Type
House
Bedrooms
3
Bathrooms
3
Stand Size
396m²
Building Size
282m²
Living Area
1
Study
1
Covered Parking
2
Staff Rooms
Yes
Pets Allowed
Yes
Reference
NPP74425
Property history
Listed for sale at R4,430,000
26 Jan 2023
Get to know Sandton
Considered the heart of Johannesburg, Sandton is one of the most important financial and business hubs in South Africa. It attracts many industry business powerhouses to its centre, and along with it come those seeking to make a name for themselves here.
By clicking on "contact" you agree to our privacy policy
Contact Agents
MP home loans expert Michael-Anne
Get expert home loan assistance with Michael-Anne
Ask me a question
What will my building insurance cost?
Get an instant building insurance quote for this 3 bedroom property in Broadacres
Get my price
Cover powered by
Authorised FSP
What will my move cost?
Calculate your moving costs to Broadacres with the help of our moving partners.
Get quotes
Moving powered by
Property questions?
Get quick answers about buying, selling, renting, and more from our AI powered real estate bot