Street view
Save
Notify Similar
R14,222,237

Industrial for sale in Bartlett

1 Empire Equity Road, Airport Strategic Park
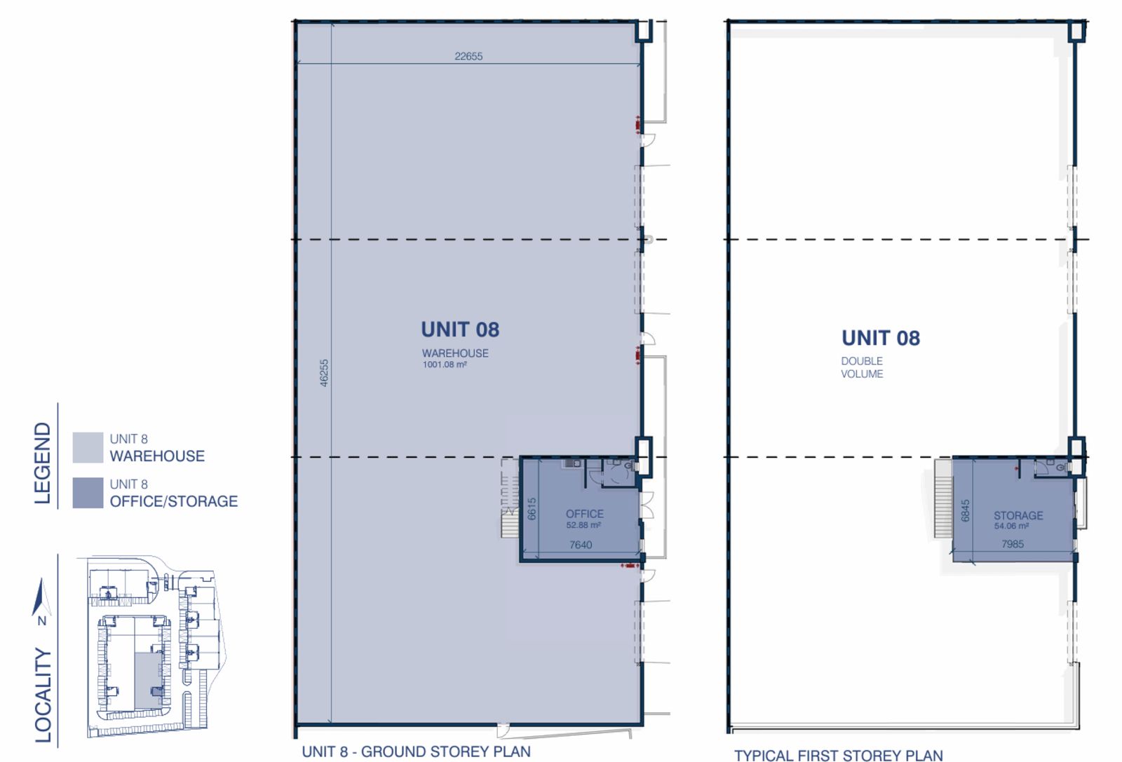
1,141m²
Industrial For Sale In Bartlett

mini warehouses located minutes from O.R. Tambo International Airport and the N12, this prime location places you at the heart of Johannesburg’s industrial and retail hub.

This development will feature spacious warehouses with natural airflow, roller-shutter doors and large truck access combined with ample contemporary office space; all located with secure, 24-hour access control and round-the-clock security.

Ideal for small business owners, wholesalers, specialized retailers, and investors, this new development offers versatile industrial mini units in the thriving Bartlett area.

Property Type
Industrial
Building Size
1,141m²
Study
1
Covered Parking
1
Open Parking
1
Rates & Taxes
R1
Levy
R1
Warehouse
Yes
Totally Fenced
Yes
24 Hour Access
Yes
Guard House
Yes
Secure Parking
Yes
Reference
ENT0306418
Security
Totally Fenced, 24 Hour Access, Guard House
Address
1 Empire Equity Road
Property history
Listed for sale at R14,222,237
25 Sep 2025
Get to know Boksburg
This suburb, situated on the East Rand of Gauteng, has played a major role in the area’s history since it was originally laid out in 1887. Boksburg was intended to serve the surrounding gold mines via the historic Main Reef Road.
By clicking on "contact" you agree to our privacy policy
Contact Agent
What will my move cost?
Calculate your moving costs to Bartlett with the help of our moving partners.
Get quotes
Moving powered by
Property questions?
Get quick answers about buying, selling, renting, and more from our AI powered real estate bot