Save
Notify Similar
R13,490,000

4 bedroom farm for sale in Aalwyndal

4 Beds
3 Baths
7.8ha
Pool
Pets Allowed
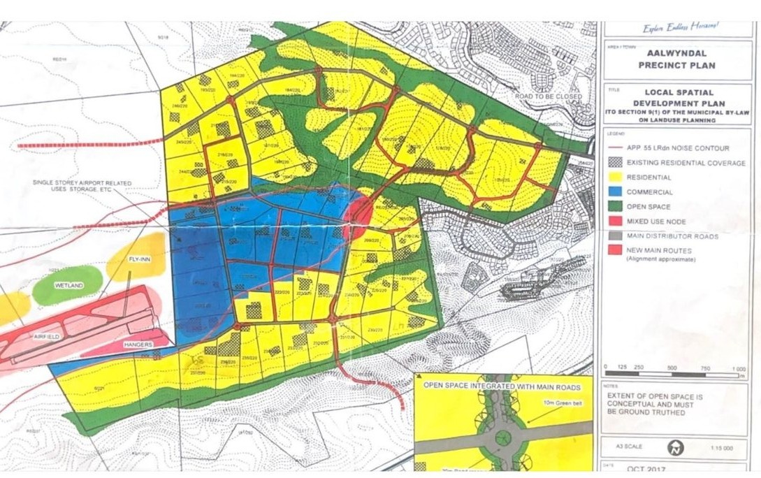
Prime A1 Development Asset High-density Hub In Mossel Bay’s Growth Corridor

A rare, shovel-ready opportunity to lead the transformation of the Garden Route’s premier urban expansion node.

Positioned in the heart of the Aalwyndal Precinct, this smallholding is a cornerstone of Mossel Bay’s future spatial vision. Earmarked for High-Density Residential (A1) development, the property is designed to meet the rising demand for modern, compact coastal living within a master-planned neighborhood.

The Strategic Investment Case

Optimal Unit Yield: The A1 zoning is a primary driver for densification, allowing for the maximum residential footprint permitted in the precinct.

Infrastructure-Backed Growth: The property is integrated into the municipal bulk service networks, with planned road linkages and utility upgrades designed to support high-density expansion.

Economic Synergy: Strategically located to bridge the gap between Mossel Bay’s commercial centers and the airport, creating a viable, high-value economic hub.

Proximity Power: Only 7km from the CBD, Langeberg Mall, and the Voorbaai Business District, ensuring high appeal for future residents.

Planning Framework & Vision (2018 Precinct Plan)

The development is guided by a sophisticated urban form that prioritizes sustainability and long-term capital appreciation:

Mixed-Use Integration: Part of a vision for a sustainable, walkable neighborhood that balances residential, commercial, and natural environments.

Sustainable Infrastructure: Design principles emphasize renewable energy and green construction, aligning with modern investor ESG requirements.

Fiscal Alignment: As part of the Local Spatial Development Plan (LSDP), this area is a core component of the municipal IDP and budget, providing a secure environment for large-scale capital investment.

Site Features & Operational Readiness

The property provides immediate utility to streamline the transition from acquisition to construction:

Holding Potential: Three self-contained apartments (ranging from bachelor to 2-bedroom units) offer immediate rental yield or on-site staff housing.

Development Base: The existing dwelling and established electricity supply serve as an ideal site office and staging area.

Verified Rights: All development and design adheres to the Zoning Scheme Bylaw, providing a clear legal path for rezoning and subdivision.

Development-Ready Infrastructure

The property offers immediate utility to facilitate a seamless transition into the planning and construction phases:

Operational Base: The existing main house is perfectly suited for a site office or staff accommodation.

Service Ready: Established electricity supply and secure, enclosed areas are already in place.

Holding Income: Three self-contained apartments provide immediate rental yield or guest housing while you finalize your site plans.

Accommodation Summary

Apartment 1:

One Bedroom with sleeper lounge, tiled throughout with full shower facilities.

Apartment 2:

Efficient bachelor-style studio with en-suite.

Apartment 3:

Two Bedroom layout featuring a full kitchen, laundry, and private courtyard.

This is a timely opportunity to secure a "blank canvas" for a flagship residential estate or boutique retirement village in a market showing significant upward momentum.

Contact me for more information and a copy of the AALWYNDAL PRECINCT PLAN - March 2018

Property Type
Farm
Bedrooms
4
Bathrooms
3
Stand Size
7.8ha
Living Area
1
Covered Parking
3
Pool
Yes
Pets Allowed
Yes
Reference
RL4220
Property history
Listed for sale at R13,490,000
17 Feb 2026
Get to know Mossel Bay
Mossel Bay, located along South Africa’s scenic Garden Route in the Western Cape, is a coastal town known for its blend of natural beauty, rich history, and modern amenities. With a strong tourism sector, family-friendly atmosphere, and appealing lifestyle options, Mossel Bay has become an attractive destination for property buyers, retirees, and investors looking to enjoy coastal living while still benefiting from urban conveniences.
By clicking on "contact" you agree to our privacy policy
Contact Agent
What will my move cost?
Calculate your moving costs to Aalwyndal with the help of our moving partners.
Get quotes
Moving powered by
Property questions?
Get quick answers about buying, selling, renting, and more from our AI powered real estate bot