Create your coastal retreat in Great Brak River — 577 sqm open stand, steps from the estuary and 1 km from Southern Cape beaches, secure shared entrance and no levies.
EXCLUSIVE SOLE MANDATE
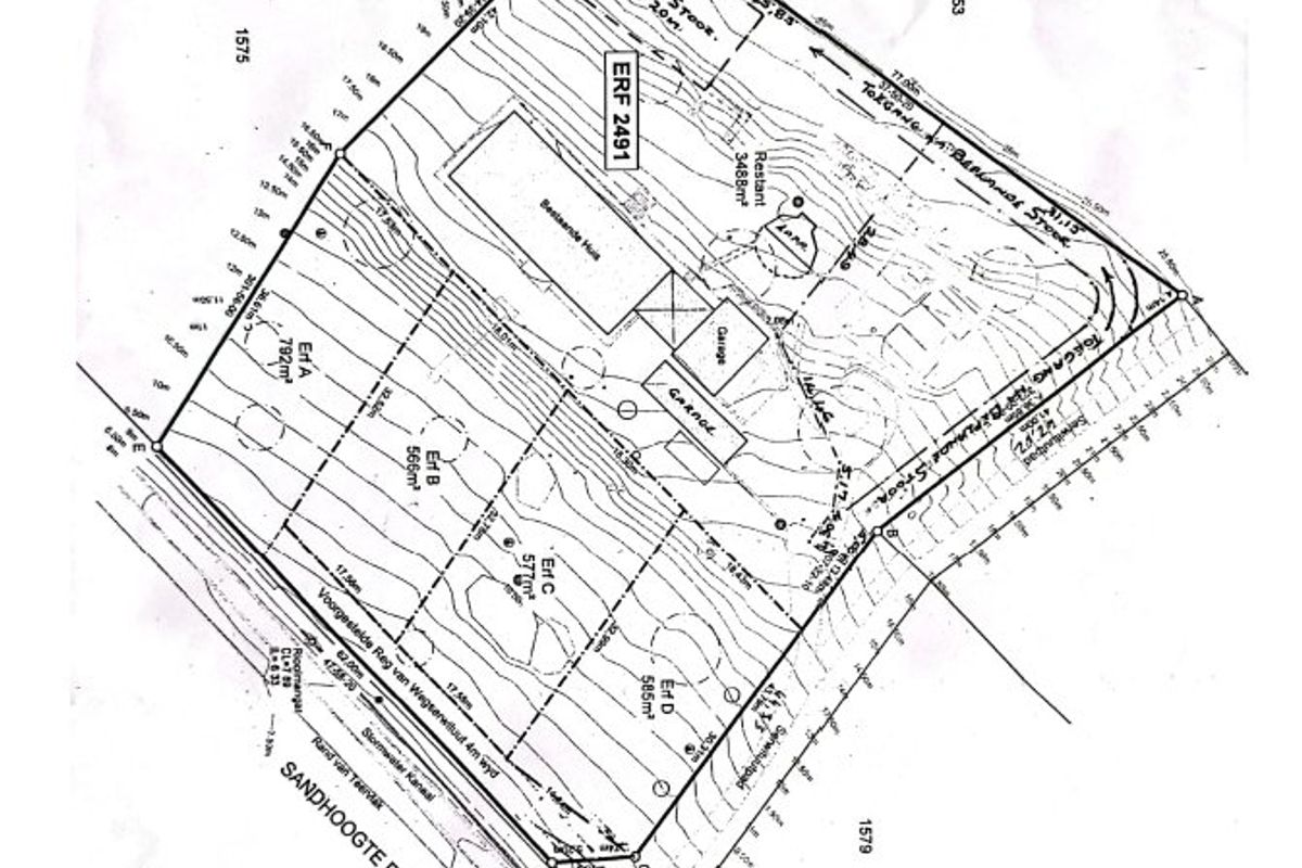
Discover the perfect opportunity to build your dream home on an open stand of 577sqm in Great Brak River.
This stand is just 1 km from the clean beaches of the Southern Cape and only steps away from the serene river and river estuary.
You can build immediately or just keep it as an investment. There is no rules and levies but offers a secure entrance to the 4 stands. There is a servitude road that services the 4 stands with one entrance.
You can also buy al 4 stands with a reduced price of R4.5m.
Enjoy the best of coastal living, with Hartenbos only 10 km away and the convenience of being halfway between George and Mossel Bay.
Embrace the tranquility and beauty of this idyllic setting—your ideal lifestyle awaits!
Listed for sale at R1,190,000
Calculate your moving costs to Bergsig with the help of our moving partners.
Bergsig offers a tranquil residential environment with stunning views and convenient access to the amenities of Great Brak River and the surrounding Garden Route.
* Distances and amenities are approximate.