Embrace secluded country living in Glen Cullen Private Estate with panoramic northern views, approved 531m² modern home plans, off-grid solar power, boma entertaining area and pool; four bedrooms, 3.5 baths.
Sole Mandate
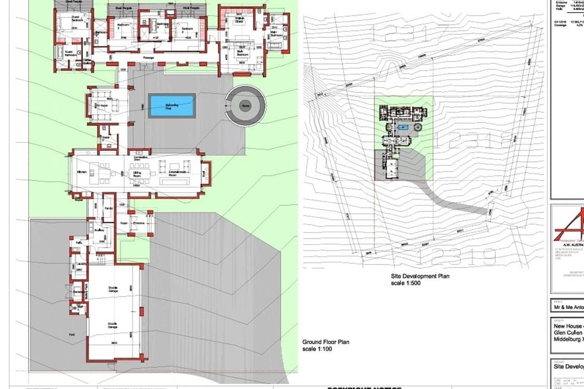
🌿 A Rare Opportunity in Glen Cullen — Premium 12 506 m2 Stand With Approved 531 m2 Luxury Home Plans! 🌿
Secure one of the most exceptional stands in the prestigious Glen Cullen Private Country Estate! Perfectly positioned with panoramic northern views and surrounded by beautifully established homes, this expansive 12 506 m2 property offers unbeatable privacy, tranquillity, and space — with no future construction encroaching on your view.
🏡 531 m2 Architect-Designed Dream Home Included
This stand comes with fully approved plans for a stunning 531 m2 modern masterpiece. Designed for those who love style, space, and effortless living, every element of this home compliments the estate’s natural beauty.
🔧 Construction-Ready Package
A detailed, estate-approved contractor quotation is already in place — allowing you to start building immediately without delays or complications.
✨ Luxury Modern Design Features
The proposed home offers:
🔋 Live Completely Off-Grid
Glen Cullen is proudly South Africa’s first 100% off-grid solar-powered country estate, ensuring sustainable, uninterrupted living for your family.
🐴 Exclusive Estate Features
💰 Option to Purchase Stand Only
Prefer designing your own dream home? Buy the vacant stand (without the approved plans) for R1 400 000.
This is your chance to invest in a lifestyle of space, freedom, and prestige — opportunities like this rarely come up.
📞 Call me today for more information or to secure this exceptional stand!
Listed for sale at R1,370,000
MyProperty Benchmark Indicator: Data-driven comparison vs similar active properties
Based on 28 listings in Middelburg (town)
Insight
Priced above the median for similar land listings in the area. On a price-per-land-m² basis, it is 88% below the median. Land size is 778% larger than typical for similar land.
Benchmark uses town-level data where suburb sample size is limited. Premium areas may trade above town averages - check with the agent for local guidance.
Similar properties pricing
Key differences
Affordability
R 13,449 / month
Estimated bond repayment
20 years · 10.25% · 0% deposit
Market depth
28 similar listings
Medium similar land inventory town-wide (Middelburg)
Median time on market: 151 days
* Insights are based on current active listings (excludes sold data) and may change. This is not a valuation or appraisal. Smart Property Insights Model v1.0
Get an instant building insurance quote for this property in Glen Cullen Private Country Estate
Get my priceCalculate your moving costs to Glen Cullen Private Country Estate with the help of our moving partners.
Get quotesGlen Cullen Private Country Estate offers a secure and tranquil lifestyle with spacious properties and access to natural surroundings, appealing to families and those seeking a peaceful retreat near Middelburg.
* Distances and amenities are approximate.