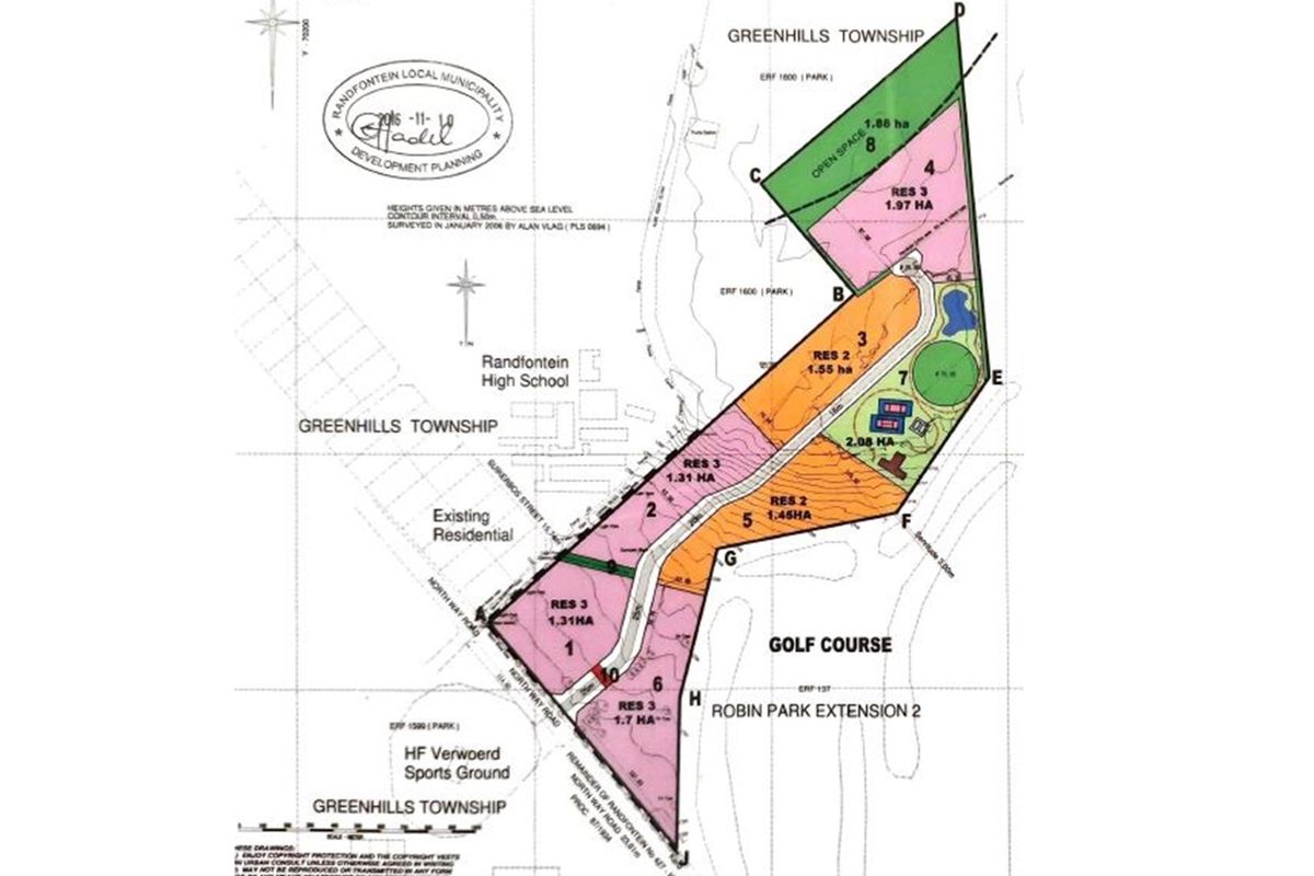
Create a golf-side lifestyle community bordering Randfontein Golf Course, minutes from local amenities — shovel-ready 14.57-hectare parcel with approvals in place and strong community backing.
This exceptional parcel of land, bordering the picturesque Randfontein Golf Course, presents a rare and lucrative development opportunity. Strategically positioned near key local amenities, the property offers both convenience and an attractive lifestyle setting for future residents.
All necessary approvals and documentation are already in place, allowing the developer to break ground immediately. Furthermore, the current owner is a highly regarded member of the community, ensuring strong local support and a seamless development process.
Whether you`re envisioning an exclusive residential estate, a lifestyle-oriented community, or an investment-driven project, this prime location provides the perfect foundation for success. Don’t miss out on this unique opportunity to bring your vision to life in one of Randfontein’s most sought-after areas.
Listed for sale at R42,000,000
Calculate your moving costs to Greenhills with the help of our moving partners.
Greenhills offers a comfortable suburban lifestyle with convenient access to essential amenities and recreational opportunities, making it an attractive residential area in Randfontein.
* Distances and amenities are approximate.