Create an exclusive golf-side lifestyle in Centurion's sought-after peri-urban setting, adjacent to Copperleaf Golf Estate with approved studies and services primed for development on 21.41 ha.
Prime Development Opportunity in Centurion: 21.4 Ha of Land Near Copperleaf Golf Estate
Discover an exceptional opportunity for real estate development with this expansive 21.4-hectare property located on a portion of the Farm Knopjeslaagte, within the thriving peri-urban area of Centurion. Positioned adjacent to the prestigious Copperleaf Golf Estate, home to the renowned Ernie Els designed golf course, this site offers both a serene setting and convenient access to modern amenities.
Acquired by the current owner in 2004, the property is unencumbered and primed for development. Since 2005, extensive studies, including noise impact, traffic impact, geological, and environmental assessments, have been conducted, all yielding positive outcomes. Although legislation requires periodic updates to these studies if development is not completed promptly, rest assured that all necessary groundwork has been thoroughly established.
The property benefits from a letter of no objection from Gautrans, subject to standard conditions. Additionally, stormwater management plans have been arranged, with disbursement directed to the west of the property. A services servitude contract with the adjacent owner further ensures seamless infrastructure integration.
Power supply is readily available, with a quotation from Eskom dating back to 2011 confirming availability. A fresh quotation can be obtained to meet current requirements. Importantly, consent has been obtained from an adjacent mineral right holder to proceed with township establishment, and there are no existing mineral rights on the property that would impede development.
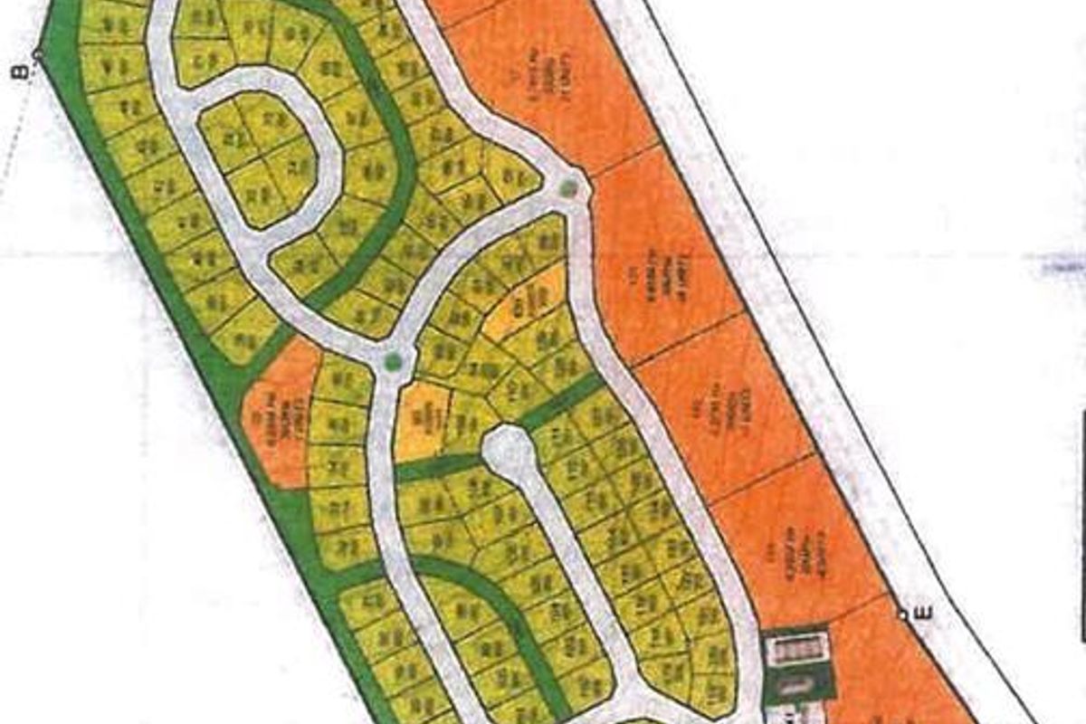
The current landowner has devised a preliminary layout proposal for a luxurious estate comprising 435 units, featuring security complexes and spacious stands. This proposal serves as an exciting example of the potential this land holds for developers seeking to create luxury properties or other visionary projects.
This is a fantastic opportunity for developers looking to make a significant impact in a sought-after region. Don't miss the chance to turn your development dreams into reality. Contact me today to arrange a viewing and explore the endless possibilities this prime land offers.
Develop your dream estate in Centurion’s most promising location!
Listed for sale at R24,000,000
MyProperty Benchmark Indicator: Data-driven comparison vs similar active properties
Based on 132 listings in Centurion (town)
Insight
Priced above the median for similar land listings in the area. On a price-per-land-m² basis, it is 94% below the median. Land size is 30355% larger than typical for similar land.
Benchmark uses town-level data where suburb sample size is limited. Premium areas may trade above town averages - check with the agent for local guidance.
Similar properties pricing
Key differences
Affordability
R 235,594 / month
Estimated bond repayment
20 years · 10.25% · 0% deposit
Market depth
132 similar listings
High similar land inventory town-wide (Centurion)
Median time on market: 190 days
* Insights are based on current active listings (excludes sold data) and may change. This is not a valuation or appraisal. Smart Property Insights Model v1.0
Knopjeslaagte offers a tranquil, semi-rural lifestyle with larger properties, appealing to those seeking space and a quieter environment while still being relatively close to urban amenities.
* Distances and amenities are approximate.