Enjoy relaxed, community-focused retirement living in Berg en Dal, Wellington — compact bachelor apartment with easy-care finishes, covered parking, and access to on-site wellness centre.
Discover a new level of comfort, security, and well-being at Wellington Estate—a retirement lifestyle designed around you. Set in the peaceful enclave of Berg en Dal, this exclusive estate offers the perfect blend of tranquillity, community living, and modern convenience. Every element has been thoughtfully created to support a fulfilling and wellness-focused lifestyle for adults aged 50 and over.
Wellington Estate is situated on Bergendal Street in Wellington, Cape Town, offering a calm setting surrounded by natural beauty, yet conveniently close to local amenities. The secure estate features three modern sectional title apartments and premium finishes tailored for comfortable, low-maintenance living.
Current offering: 6 Months HOA Levies Special on all apartment purchases concluded in March 2026. (Ts & Cs Apply)
Phase 1 consists of the following Sectional Title Ground Floor Apartments Selling From:
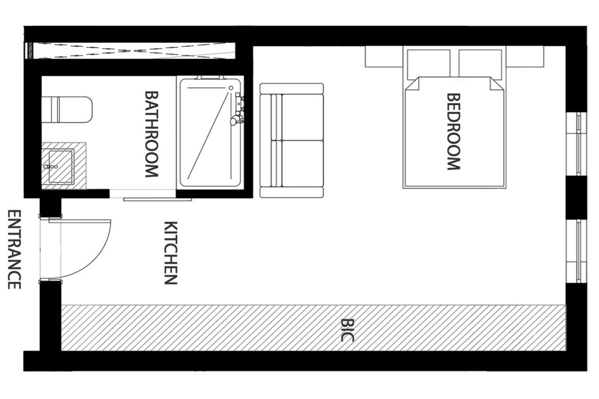
🏡 Type 4: 33 m2 - Bachelor Apartment, 1 Bath, Single Covered Parking Bay - From R1,375,000
🏡 Type 2: 51 m2 - 1 Bedroom Apartment, 1 Bath, Single Covered Parking Bay - From R1,750,000
🏡 Type 1: 72 m2 - 2 Bedroom Apartment, 11⁄2 Bath, Single Covered Parking Bay - From R2,150,000
The estate offers a wide range of facilities and services, including:
Additional Buyer Benefits:
✅ R100,000 securing deposit required
✅ No transfer duty
✅ All transfer costs included
✅ Estimated completion: October 2027
✅ Subject to the sale of your current property allowed
This is an opportunity not to be missed. Contact me today to arrange a viewing of the site or to discuss the available apartment options at Wellington Estate—where retirement living begins anew.
Listed for sale at R1,375,000
MyProperty Benchmark Indicator: Data-driven comparison vs similar active properties
Based on 17 listings in Wellington (town)
Insight
Priced below the median for similar properties in the area. On a price-per-m² basis, it is 40% above the median. Floor size is 54% smaller than typical for similar homes.
Similar properties pricing
Key differences
Affordability
R 13,498 / month
Estimated bond repayment
20 years · 10.25% · 0% deposit
Market depth
17 similar listings
Medium similar-home inventory town-wide (Wellington)
Median time on market: 34 days
* Insights are based on current active listings (excludes sold data) and may change. This is not a valuation or appraisal. Smart Property Insights Model v1.0
Berg En Dal offers a tranquil residential environment with convenient access to Wellington's amenities and the surrounding Cape Winelands.
* Distances and amenities are approximate.