Relaxed Garden Route living between George and Mossel Bay, with easy N2 access and beaches nearby; freestanding home features a private landscaped garden and three bedrooms, two baths, double garage.
Welcome to Klipheuwel Estate: Your Haven of Tranquility and Connectivity
Discover Klipheuwel Estate, an exquisite new Plot & Plan development nestled in the serene area of Fraaiuitsig. Perfectly positioned between the vibrant cities of George and Mossel Bay, this prime location offers you the best of both worlds: peaceful living with effortless access to the N2 highway. Enjoy the luxury of being just a short drive from pristine beaches, essential amenities, and a charming local padstal, all within easy reach.
Exclusive Limited-Time Launch Offer
Don't miss out on our exclusive launch offer: a fantastic R100,000 discount available only until 31 January 2026. This is a rare opportunity to own your dream home at an exceptional price in one of the most desirable and picturesque locations on the Garden Route.
Your Perfect Home Awaits
Klipheuwel Estate features 150 freestanding units with options for both 3-bedroom and 2-bedroom homes, each thoughtfully designed to enhance your lifestyle. Every home is turnkey ready, with inclusive pricing that covers transfer duty and VAT, ensuring a seamless purchasing experience. Choose from three distinct stand sizes and seven innovative housing plans to find the perfect fit for your needs. Each residence comes complete with a 1.8-meter boundary wall for privacy, a double automated garage, and a beautifully landscaped grass garden.
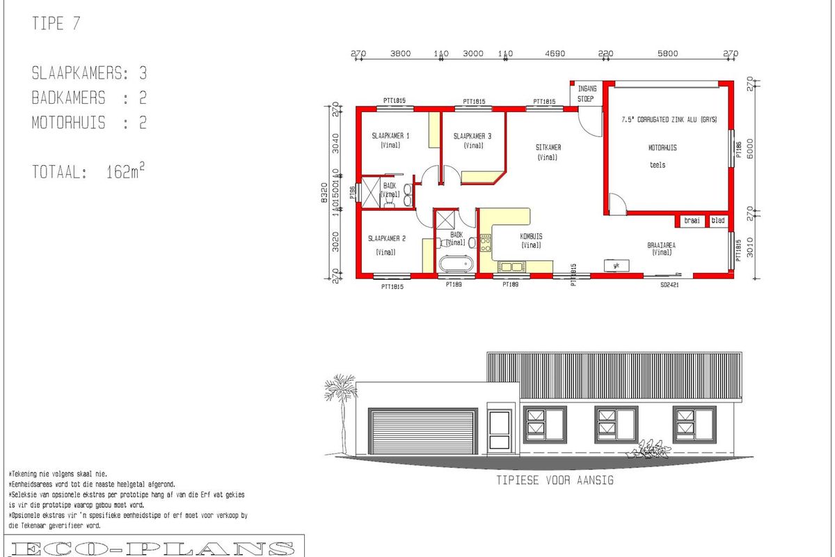
Pricing and Plans:
The following prices (plot and plan) are based on stands valued at R700,000.
- Plan Type 1: R2,970,000 (158m2, 3 bedrooms, 2 bathrooms, 2 garages)
- Plan Type 2: R3,210,000 (174m2, 3 bedrooms, 2 bathrooms, 2 garages)
- Plan Type 3: R2,595,000 (133m2, 2 bedrooms, 2 bathrooms, 2 garages)
- Plan Type 4: R2,850,000 (150m2, 2 bedrooms, 2 bathrooms, 2 garages)
- Plan Type 5: R3,885,000 (219m2, 3 bedrooms, 2 bathrooms, 2 garages)
- Plan Type 6: R3,255,000 (177m2, 3 bedrooms, 2 bathrooms, 2 garages)
- Plan Type 7: R3,210,000 (162m2, 3 bedrooms, 2 bathrooms, 2 garages)
Secure and Pet-Friendly Living
The estate is fully enclosed with an electric fence and offers 24-hour security within a gated community, ensuring peace of mind for you and your loved ones. Pet owners will be pleased to know that we have a pet-friendly policy allowing up to two medium-sized dogs (please note that cats are not permitted).
Become Part of Our Community and immerse yourself in the breathtaking beauty of the Garden Route by joining this exceptional new community. Act quickly to secure your place in this vibrant and welcoming environment.
For viewings or additional information, contact us today!
* Monthly costs are estimates and should be confirmed with the agent.
Listed for sale at R2,850,000
MyProperty Benchmark Indicator: Data-driven comparison vs similar active properties
Based on 23 listings in Fraaiuitsig
Insight
Priced below the median for similar properties in the area. On a price-per-m² basis, it is 6% below the median.
Similar properties pricing
Key differences
Market depth
23 similar listings
Medium similar-home inventory in Fraaiuitsig
Median time on market: 236 days
* Insights are based on current active listings (excludes sold data) and may change. This is not a valuation or appraisal. Smart Property Insights Model v1.0
Fraaiuitsig is a tranquil, family-oriented residential suburb in the Greater Mossel Bay area, offering residents a peaceful coastal lifestyle with convenient access to essential amenities and beautiful beaches.
* Distances and amenities are approximate.