Resort-style living in SilverLeaf Estate, Homes Haven — minutes from Cradlestone Mall and Lanseria. Covered patio with built-in braai and private boma, three beds, three baths, double garage.
Modern Luxury Living in the Sought-After SilverLeaf Estate, Homes Haven
Discover refined estate living in the newly developed and highly sought-after SilverLeaf Estate in Homes Haven. This elegant freestanding double-storey home, currently under construction, has been thoughtfully designed to offer modern comfort, generous space, and high-quality finishes for the discerning homeowner.
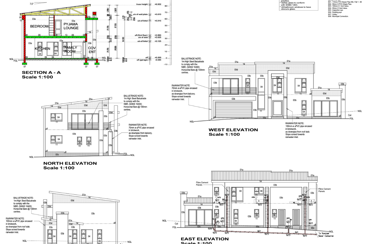
Set on a 374m2 stand with 235m2 under roof, this beautifully planned residence combines contemporary architecture with practical family living. The home features premium finishes throughout, including charcoal anodized aluminium windows and doors that complement the home’s sleek modern design.
A major advantage is that the property is sold with no transfer duties, making it an exceptional opportunity for buyers seeking a new, move-in-ready home within a secure estate environment.
Ground Floor -
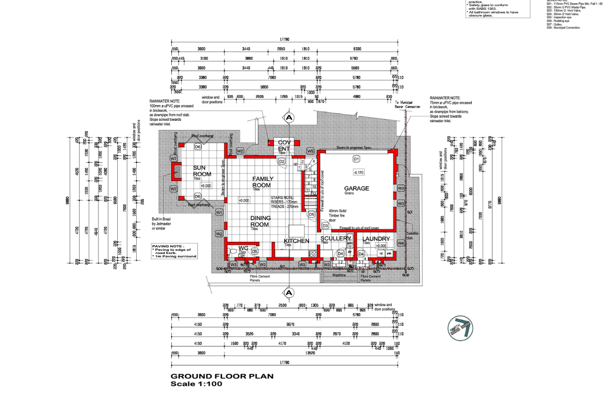
The home welcomes you through a covered main entrance into a bright and spacious open-plan living area. The modern layout seamlessly connects the kitchen, dining area, and family lounge, creating an inviting space ideal for both everyday living and entertaining.
Large sliding doors lead from the living area onto a covered enclosed patio complete with a built-in braai, overlooking the private garden — perfect for relaxed outdoor gatherings.
The stylish kitchen is designed with both elegance and practicality in mind and features quartz countertops, a Hi-Sense black five-plate gas hob, under-counter oven, breakfast nook, and prep bowl. A separate pantry, scullery, and laundry area provide additional convenience and ample storage.
A guest toilet is also conveniently located on the ground floor.
Upper Level
Upstairs, a comfortable pajama lounge creates a relaxed family space.
The main bedroom is generously proportioned and features a luxurious full en-suite bathroom with double basins, as well as access to a private open balcony.
Two additional bedrooms each offer their own en-suite bathrooms , one with a shower and the other a full bathroom — ensuring privacy and comfort for family members or guests.
Additional Features to the home.
Double tiled garage with automated door and direct access into the kitchen.
Fibre ready to the complex
High-quality modern finishes throughout the home.
Secure Estate Living
SilverLeaf Estate offers peace of mind with 24-hour security, including a guarded entrance, controlled access, security patrols, CCTV camera systems, and electric perimeter fencing.
The spacious garden also offers a stunning boma for winter evening relaxation.
Ideally Located the estate enjoys a prime location close to key amenities:
Approximately 25 minutes from Lanseria International Airport
10 minutes from Avianto Private School
5 minutes from Cradlestone Mall, Pinehaven Hospital, Muldersdrift Primary School, Silverstar Casino and so much more.
Quick access to the R28/N14 , Avianto Hotel and so many more stunning luxury venues.
Optional Extras
The home can be equipped with additional upgrades including solar backup power. The home will be prepared for installation and backup water storage.
Kindly note Images used in the listing are of the neighbouring spec home and are intended to illustrate the quality and finishes that will apply to this unit.
Contact me today to arrange your private viewing and secure your place in this exceptional estate.
* Monthly costs are estimates and should be confirmed with the agent.
Listed for sale at R3,400,000
Price increased by 1.5% to R3,450,000
Homes Haven offers a tranquil residential environment with convenient access to essential amenities and the broader Krugersdorp area, making it ideal for families and individuals seeking a peaceful suburban lifestyle.
* Distances and amenities are approximate.