Entertainer's family living in Fountainbrook Estate, opposite Midstream Ridge and beside the new mall — covered patio with built-in braai, four bedrooms, three baths, double garage.
Exclusive 4 Bedroom House for the Modern Family. Buy direct from the developer and tailor-make this property into your forever Home by choosing your own finishes. Situated in the new and exciting Fountainbrook Estate, opposite Midstream Ridge and adjacent to the new Shopping Mall. Allowing you quick access to Schools, Shopping Centers, Hospital and Retirement Facilities and access to the Major Highways.
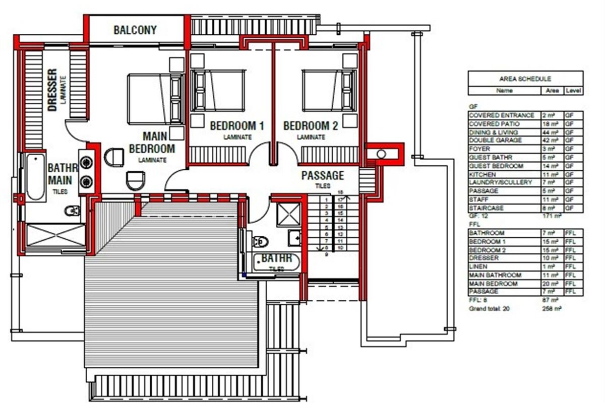
The basic plan offers:
3 Bedrooms and 2 Bathrooms Upstairs.
Main bedroom with a Walk-in Closet, Balcony and En-Suite bathroom.
Open plan Kitchen and separate Scullery
Lounge and dining room.
Guest Bedroom and Bathroom downstairs.
Covered Patio with a Build-in Braai.
Domestic room and bathroom.
Double automated Garages.
Pay no transfer Duties with this Beutiful plan and become part of this prestigious Estate already very Popular due to the Location and Amenities close by.
Give me a call so I can Introduce you to this stunning Home.
* Monthly costs are estimates and should be confirmed with the agent.
Listed for sale at R5,300,000
MyProperty Benchmark Indicator: Data-driven comparison vs similar active properties
Based on 68 listings in Midstream Estate
Insight
Priced slightly below the median for similar properties. On a price-per-m² basis, it is 6% above the median. Floor size is 20% smaller than typical for similar homes.
Similar properties pricing
Key differences
Market depth
68 similar listings
High similar-home inventory in Midstream Estate
Median time on market: 157 days
* Insights are based on current active listings (excludes sold data) and may change. This is not a valuation or appraisal. Smart Property Insights Model v1.0
Midstream Estate is a premier, highly secure residential enclave in Centurion that offers a comprehensive lifestyle experience with world-class amenities, top-tier schools, and extensive recreational facilities designed for families seeking peace of mind and community living.
* Distances and amenities are approximate.