Effortless family living in secure Fountainbrook Estate with indoor-outdoor flow and outside boma for entertaining; modern kitchen, balcony off main suite, four bedrooms, three bathrooms, double garage.
MODERN 4 BEDROOM HOUSE FOR SALE IN FOUNTAINBROOK ESTATE.
Selling direct from the developer as a Building Package. Save on transfer duty with this Building Package that offers exceptional finishes and the ultimate lifestyle in the popular new and secure Estate of Fountainbrook.
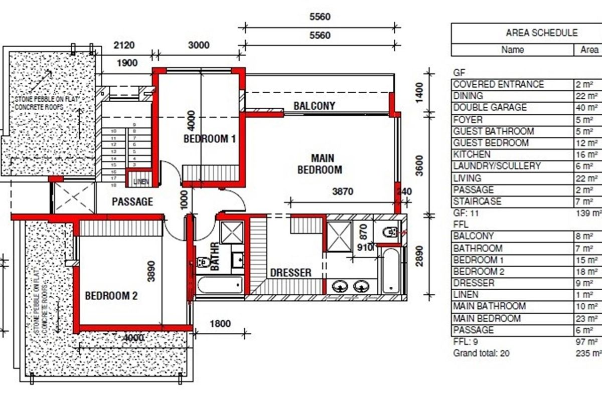
Main Features:
3 Bedrooms and 2 Bathrooms upstairs with the Guest Bedroom/Stydy and Bathroom downstairs.
Main Bedroom with walk-in Closet and Exclusive En-Suite Bathroom and Balcony.
Modern Open plan kitchen with an Island and separate scullery and Pantry.
Open plan Lounge and Dining room.
Covered Patio with a Built-in Braai.
Outside Boma area for outdoor entertainment.
Double Automated Garages and ample parking for visitors.
Irrigation.
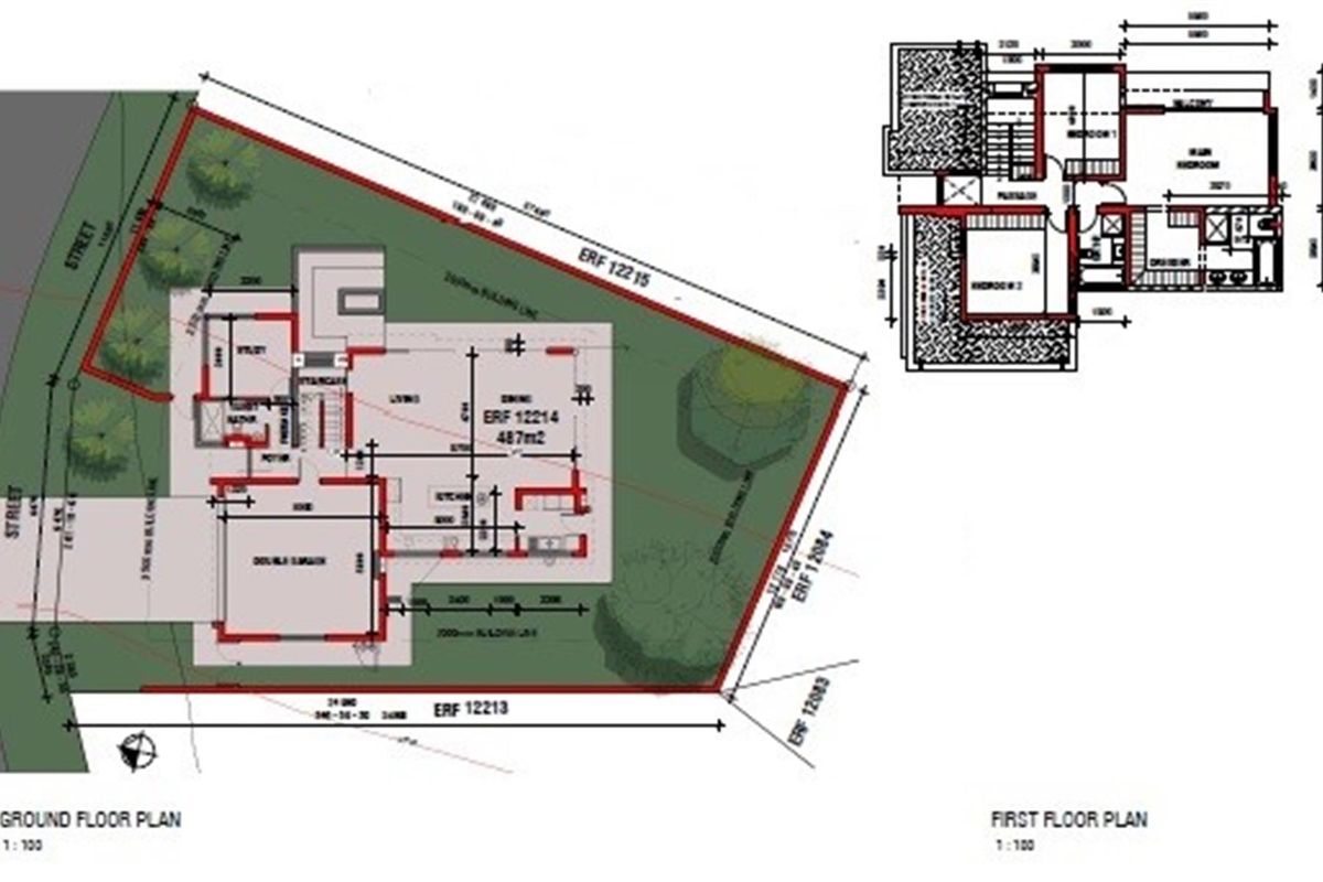
Make and appointment to view the location and go through the plans.
* Monthly costs are estimates and should be confirmed with the agent.
Listed for sale at R4,810,750
MyProperty Benchmark Indicator: Data-driven comparison vs similar active properties
Based on 68 listings in Midstream Estate
Insight
Priced below the median for similar properties in the area. On a price-per-m² basis, it is 6% above the median. Floor size is 27% smaller than typical for similar homes.
Similar properties pricing
Key differences
Market depth
68 similar listings
High similar-home inventory in Midstream Estate
Median time on market: 157 days
* Insights are based on current active listings (excludes sold data) and may change. This is not a valuation or appraisal. Smart Property Insights Model v1.0
Midstream Estate is a premier, highly secure residential enclave in Centurion that offers a comprehensive lifestyle experience with world-class amenities, top-tier schools, and extensive recreational facilities designed for families seeking peace of mind and community living.
* Distances and amenities are approximate.