Guy de la Porte
The Airport Property Guy
Verified FFC
This Property Practitioner’s FFC has been verified by MyProperty
View more of my listings
R640,000 per month
Industrial to rent in Airport Industria
Western Cape, Cape Town, Airport Industria
92 Palotti Road
6,400m²
19,304m²
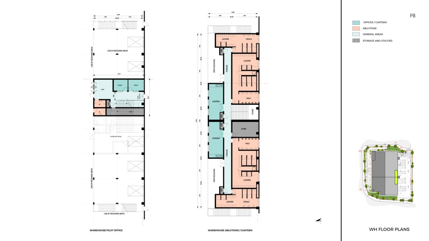
9800m2 warehouse development in King Air Industria

King Air Industrial Greenfields Development - Premium Industrial Space in Cape Town

Strategic Location in King Air Industria

This brand new turnkey industrial development sits in the heart of King Air Industria, Airport Industria's premier industrial park. Positioned at the doorstep of Cape Town International Airport with Table Bay Harbour within close range, this location offers exceptional connectivity for logistics and distribution operations.

Flexible Space Configuration

Two Development Options Available:

Option 1: Entire Property - 9,800 m2

Option 2: Unit 1 - 6,400 m2 | Unit 2 - 3,400 m2

Warehouses can be built to client specifications with impressive 15-metre height capabilities and full sprinkler systems with holding tanks.

Site Specifications:

Site N4 comprises a 19,524 m2 plot of fully serviced land within the King Air Industria development, formerly the King David Golf Course. The rental rate of R100 per m2 of built area is dependent on specifications and is offered on a triple net lease basis.

Security & Infrastructure

The development features:

- 24-hour guarded access via internal gatehouses

- "Clearvu" perimeter fencing

- Centralised fire pumps and tanks (ASIB compliant)

- Fibre optic infrastructure compatible with tenant's preferred ISP

Accessibility & Convenience

The property benefits from:

- Extensive planned road upgrades in the surrounding area

- Public transport in close proximity

- Direct access to major arterial routes

- Strategic positioning for efficient distribution networks

Industrial Park Benefits

King Air Industria offers a world-class industrial environment with:

- Purpose-built warehousing and distribution facilities

- Modern infrastructure designed for industrial and logistics operations

- Professional landscaping

- Secure environment

This development presents an optimal solution for industrial businesses and logistics companies requiring modern facilities with strategic transportation connections in the Cape Town region.

Property Type
Industrial
Stand Size
19,304m²
Building Size
6,400m²
24 Hour Security
Yes
3 Phase Power
Yes
Airconditioned Offices
Yes
Container Height Doors
Yes
Dock Levellers
Yes
Fire Sprinklers
Yes
Food Grade
Yes
High Parking Ratio
Yes
Interlink Truck Access
Yes
Loading Canopies
Yes
Modern Offices
Yes
Multiple Loading Doors
Yes
Private Yard
Yes
Roof Height 10 metre plus
Yes
Reference
S2763
Address
92 Palotti Road
Enquiry now
MyProperty Profile Websites