Your guide to living in Nigel Central, Nigel, Gauteng
Prices based on current active listings
Trusted agents share their expertise about this area
Ready to explore available properties? Browse current listings or narrow your search.
Your guide to living in Nigel Central, Nigel, Gauteng
Prices based on current active listings
Nigel Central offers a quiet, community-oriented lifestyle with convenient access to essential amenities and services, making it a suitable place for families and individuals seeking a more relaxed pace of life.
* Distances and amenities are approximate.
Trusted agents share their expertise about this area
Ready to explore available properties? Browse current listings or narrow your search.
Nigel Central
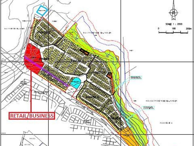
Create a vibrant mixed-use community next to Alra Park in Nigel, with direct access to R51/R550, retail-ready 1.9ha business stand and 596 full-title residential stands.
Nigel Central
Two 3-bedroom houses and two 2-bedroom flats on 1546 m², with 2 bathrooms and 4 covered parking spaces.
Nigel Central
Family-focused living in central Nigel, quiet Ext 2 near schools, with expansive entertainment space featuring a built-in smoker. Three bedrooms, two bathrooms and automated double garage with drive-through.