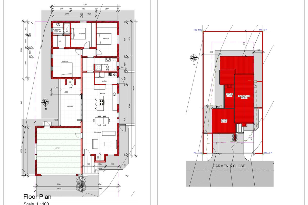
Three-bedroom, two-bathroom home in Welgedaan Estate, Saldanha Bay; 550 m² stand size. Close to beach and amenities.
Photos Available – Showcasing the Builder’s Previous Masterpieces
Don't miss your chance to own this stunning three-bedroom, two-bathroom home in the sought-after Welgedaan Estate, Saldanha Bay – the ideal blend of modern living and natural beauty.
Why Choose Welgedaan Estate?
Set in an elevated, tranquil location, Welgedaan Estate offers a peaceful lifestyle in harmony with nature. Spanning 38 hectares, the estate is being developed in phases and will include green areas and walking trails, perfect for outdoor enthusiasts and families alike.
Whether you're searching for a peaceful retirement retreat or a smart investment, this home ticks all the boxes.
Developer You Can Trust
Welgedaan Estate is proudly brought to you by D2SA Property Developers, a Belgium-based company with a strong presence in South Africa. The development is led by Raf Verlinden, a seasoned property developer with successful projects across Belgium, France, the Netherlands, and South Africa’s West Coast, including Admiral Island (Laaiplek), Olifantskop, and Helios Place (Langebaan).
Raf personally oversees all aspects of the project—from land acquisition to construction and municipal negotiations—ensuring attention to detail and unmatched quality every step of the way.
Lifestyle & Location
Saldanha Bay remains one of the West Coast’s hidden gems—a thriving hub for seafood industries with a laid-back, small-town feel. Low traffic, welcoming neighbors, and stunning shorelines make this a rare opportunity.
Invest in your future today.
Schedule your private viewing and make this beautiful property yours.
* Monthly costs are estimates and should be confirmed with the agent.
Listed for sale at R2,730,000
Price increased by 2.6% to R2,800,000
MyProperty Benchmark Indicator: Data-driven comparison vs similar active properties
Based on 18 listings in Welgedaan Estate
Insight
Priced above the median for similar land listings in the area. On a price-per-land-m² basis, it is 540% above the median.
Similar properties pricing
Key differences
Market depth
18 similar listings
Medium similar land inventory in Welgedaan Estate
Median time on market: 289 days
* Insights are based on current active listings (excludes sold data) and may change. This is not a valuation or appraisal. Smart Property Insights Model v1.0
Welgedaan Estate offers a tranquil and secure residential environment within close proximity to the amenities and natural beauty of Saldanha Bay.
* Distances and amenities are approximate.