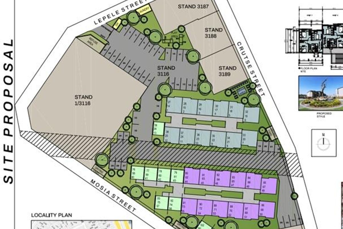
Create vibrant community living steps from Soweto's cultural hubs and amenities in the heart of Johannesburg — approved plans and residential-3 zoning on a 6,000 m² site for townhouses or apartments.
Prime develpment opportunity/Approved plans in place.
Presenting a rare and highly sought-after 6000sm2 in the heart of Soweto, Johannesburg, perfectly positioned for a residential 3 development
With its generous size and stategic location, this property offers an exceptional orpportunity for developers looking to build townhouses, apartments or rental complexes
* Monthly costs are estimates and should be confirmed with the agent.
Listed for sale at R3,800,000
Moletsane is a vibrant and well-established residential neighborhood in Soweto that offers a strong sense of community, convenient access to local amenities, and a rich cultural heritage.
* Distances and amenities are approximate.