Create a secure, upmarket community in Weltevreden Park, minutes from major roads, shopping and top schools — zoned for 21 cluster homes with approvals in place.
Prime Development Land for Sale Weltevreden Park
Calling all potential buyers, negotiating 7.9 million offers from 8 million
An exceptional investment opportunity awaits in the heart of Weltevreden Park!
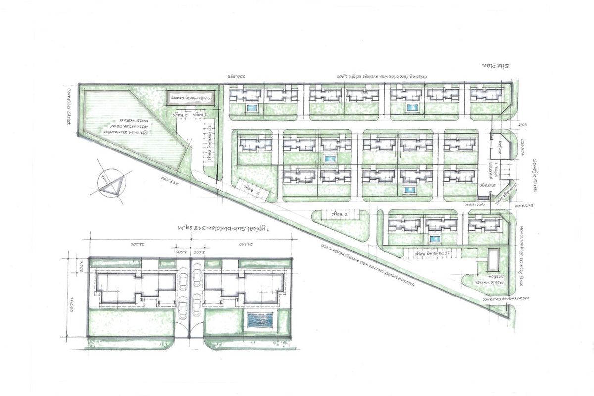
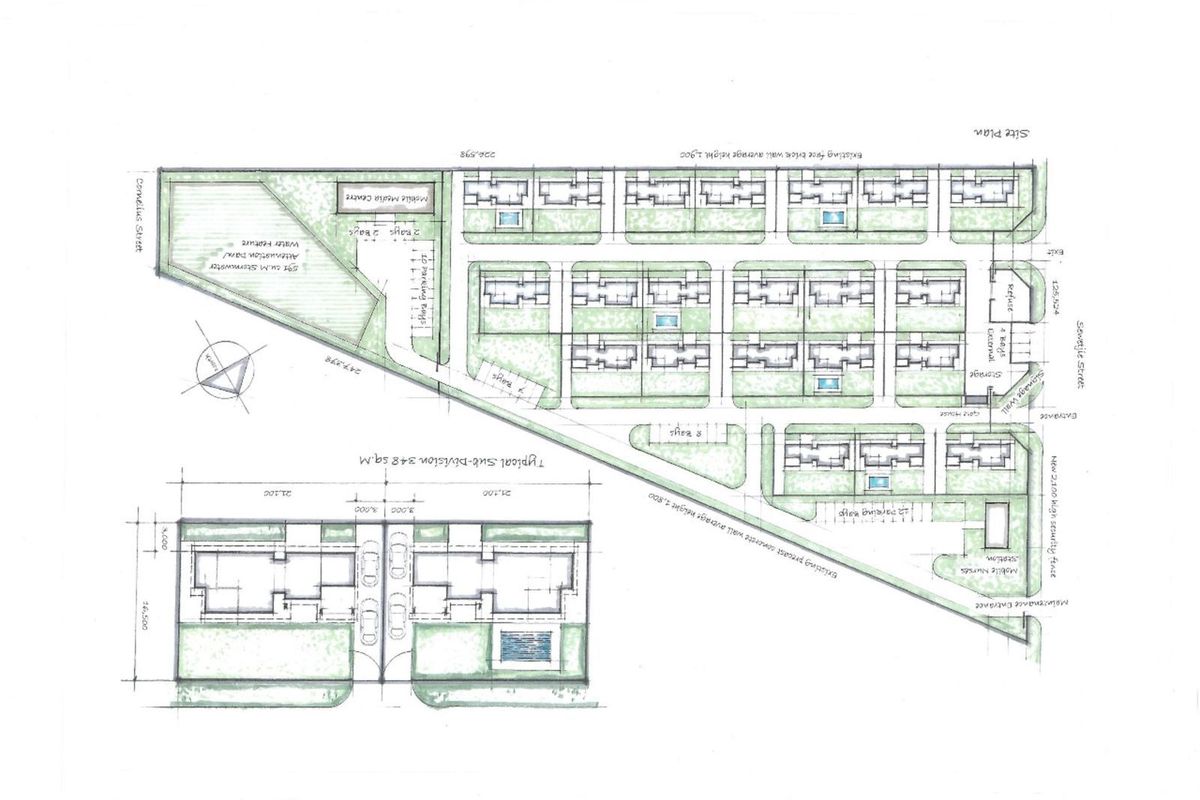
This 1.7 hectares property is already zoned for 21 cluster homes, making it a highly desirable prospect for developers and investors looking to create an exclusive, upmarket residential estate. With the demand for secure, modern housing on the rise, this development offers a unique chance to capitalize on the growing real estate market.
Located in a well established and sought after area, this land enjoys easy access to major roads, shopping centers, reputable schools, and essential amenities, making it an ideal location for families and professionals alike. The spacious layout allows for a well planned community that prioritizes security, convenience, and a quality lifestyle. Whether you're looking to build luxury homes or a secure estate with shared facilities, this development provides endless possibilities to create a highly attractive and profitable project.
Investing in this property means securing a prime piece of real estate with excellent return on investment potential. With all zoning approvals already in place, developers can fast track their projects and bring a vision of modern, stylish living to life.
Don't miss this incredible opportunity to shape the future of Weltevreden Park contact us today to discuss this development and make it yours!
Listed for sale at R8,000,000
Weltevreden Park is a well-established, family-friendly suburb offering a blend of residential comfort and convenient access to amenities in the northern part of Roodepoort.
* Distances and amenities are approximate.