Perfect for high-speed logistics operations near OR Tambo and R12. Features high-clearance warehouse, large roller door, fibre connectivity and dedicated parking in secure park.
Office 52 m2
Storage 54 m2
274 m2 Warehouse
- Newly build warehouse (occupation end 2026)
- Centrally located
- Close to R12
- Close to OR Tambo International airport
- Easy access to and from major arterials
- Easy access to freeways
- Established industrial node
- Fibre cabling available
- Fibre Connectivity
- Good exposure
- Good height in warehouse
- Good security
- Large roller door access
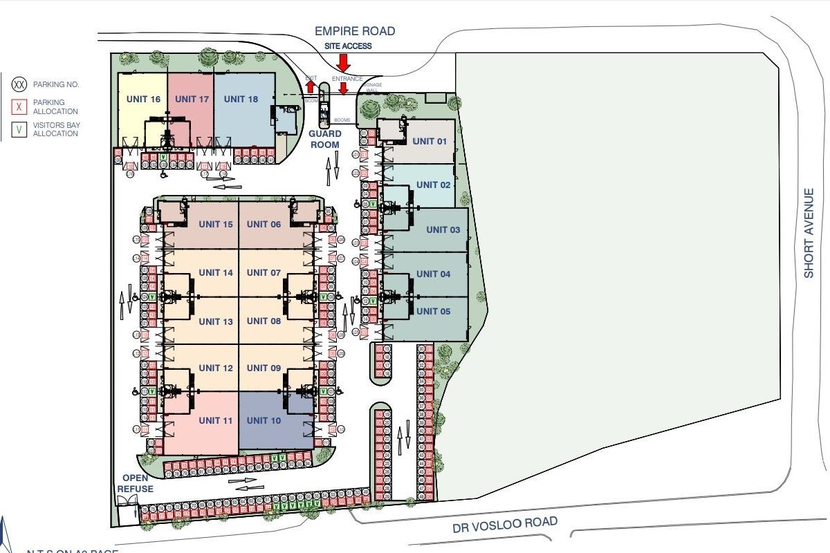
- Offices and storeroom
- Prime industrial park
- Secure palisade fence around property
- Secure park
- exclusive use parking
Price excludes vat
All areas are approximate and subject to final survey
Options are available to combine units
Allocated parking
- - - Photos are general in the park and may not be representative of the actual unit
Osher specializes in Industrial and Commercial properties with an emphasis on the greater Johannesburg area. We collaborate with our network in all parts of South Africa to find solutions for our clients. Our services include all manner of property transactions including:
LEASING: more space or less;
SALES: investment or owner occupier;
DEVELOPMENTS: build to suit for ownership or rental;
TOWNSHIP ESTABLISHMENT: bringing new zoned land to market;
LEASEBACK: unlock capital from your property for your business;
FINANCE: structuring property deals;
AUCTIONS: efficient sales with commission paid by buyer.
Listed for sale at R4,074,536
Price increased by 26.4% to R5,150,049
Bartlett in Boksburg offers a mix of industrial and commercial opportunities, benefiting from its proximity to major transport routes and established business parks, making it an attractive location for diverse business operations.
* Distances and amenities are approximate.