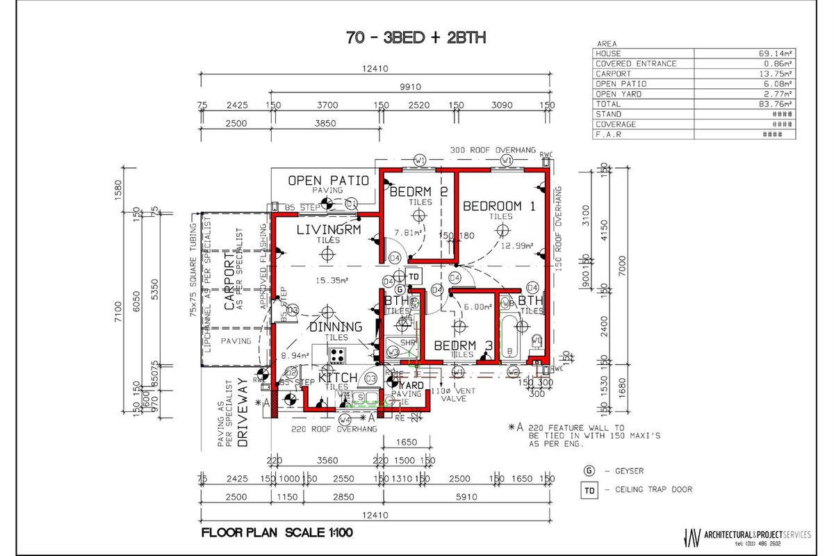
Tranquil suburban living in Karino, just outside Nelspruit, with quick highway access and solar-heated water; single-story home with three bedrooms, two bathrooms and carport.
Brand new Development - Building Package
This brand-new single-story home offers 3 bedrooms and 2 bathrooms with a modern design, to be constructed according to approved specifications in the upcoming Karino area, just outside Nelspruit.
Strategically located close to highways and main routes, the property provides excellent accessibility while offering a tranquil residential environment. Perfect for first-time homeowners or investors seeking a modern property in a developing suburb. Build your ideal home in a growing area with potential for excellent future value.
INCLUDED IN THE BUILDING PACKAGE:
OPTIONAL EXTRAS:
- Single Garage R95 000
- Double Garage R135 000
- Additional Carport R15 000
- Shower Glass Door R 5 500
- Sliding Door R5 500
#KarinoProperty #NewDevelopmentSA #DoubleStoryHome #NelspruitRealEstate #ModernHomeForSale #PropertyInvestment #AffordableHousing #3BedroomHouse #FutureDevelopment
Listed for sale at R980,000