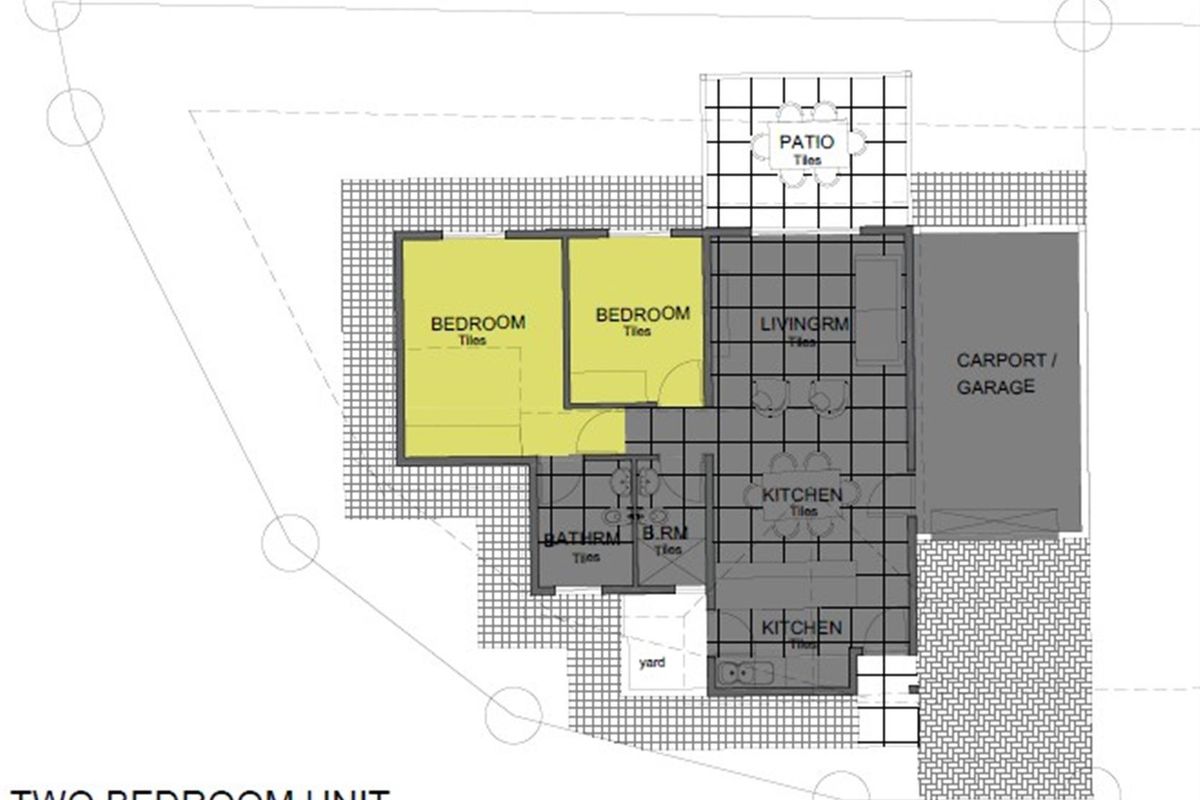
Enjoy low-maintenance suburban living in Karino, just outside Nelspruit with easy highway access and peaceful streets. Modern kitchen, solar geyser and covered carport; three bedrooms, two baths.
Brand new Development - Building Package
This brand-new single-story home offers 3 bedrooms and 2 bathrooms with a modern design, to be constructed according to approved specifications in the upcoming Karino area, just outside Nelspruit.
Strategically located close to highways and main routes, the property provides excellent accessibility while offering a tranquil residential environment. Perfect for first-time homeowners or investors seeking a modern property in a developing suburb. Build your ideal home in a growing area with potential for excellent future value.
INCLUDED IN THE BUILDING PACKAGE:
OPTIONAL EXTRAS:
- Single Garage R95 000
- Double Garage R135 000
- Additional Carport R15 000
- Shower Glass Door R 5 500
- Sliding Door R5 500
#KarinoProperty #NewDevelopmentSA #DoubleStoryHome #NelspruitRealEstate #ModernHomeForSale #PropertyInvestment #AffordableHousing #3BedroomHouse #FutureDevelopment
Listed for sale at R925,000
MyProperty Benchmark Indicator: Data-driven comparison vs similar active properties
Based on 53 listings in Nelspruit (town)
Insight
Priced below the median for similar properties in the area. On a price-per-m² basis, it is 33% above the median. Floor size is 70% smaller than typical for similar homes.
Similar properties pricing
Key differences
Affordability
R 9,080 / month
Estimated bond repayment
20 years · 10.25% · 0% deposit
Market depth
53 similar listings
High similar-home inventory town-wide (Nelspruit)
Median time on market: 133 days
* Insights are based on current active listings (excludes sold data) and may change. This is not a valuation or appraisal. Smart Property Insights Model v1.0
Karino offers a peaceful, semi-rural lifestyle with convenient access to the amenities and employment opportunities of nearby Nelspruit.
* Distances and amenities are approximate.