Enjoy minimalist A-frame living in peaceful Daggafontein, with open lounge, modern fitted kitchen and pet-friendly yard; two bedrooms, one bathroom and parking for three vehicles.
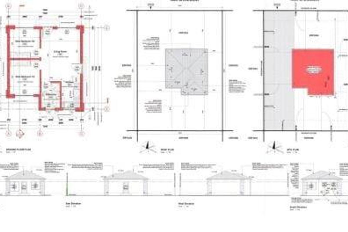
Discover modern living in Daggafontein with this stunning new A-frame style home, a freestanding gem ready to welcome its first owners. This newly developed residence showcases a distinctive A-frame architectural design, blended seamlessly with a sleek modern aesthetic. The exterior features a durable combination of brick and plaster, complemented by contemporary aluminium window options and robust steel elements, all set on a generous 391 m2 erf with an east-facing orientation.
Step inside to find a thoughtfully designed 47 m2 floor plan. The home comprises two comfortable bedrooms, a stylishly appointed bathroom, and a bright lounge area perfect for relaxation. The heart of this inviting space is a modern, fitted kitchen, where elegant tiling throughout ensures a crisp, clean finish.
Beyond the interiors, this property offers superb practical amenities. It's pet-friendly, making it ideal for animal lovers. With parking space for up to three vehicles, convenience is paramount. For your entertainment and connectivity needs, a DSTV dish is already installed, and fibre internet readiness ensures you stay seamlessly connected from day one.
* Monthly costs are estimates and should be confirmed with the agent.
Listed for sale at R717,900
MyProperty Benchmark Indicator: Data-driven comparison vs similar active properties
Based on 21 listings in Springs (town)
Insight
Priced close to the median for similar properties.
Similar properties pricing
Key differences
Market depth
21 similar listings
Medium similar-home inventory town-wide (Springs)
Median time on market: 42 days
* Insights are based on current active listings (excludes sold data) and may change. This is not a valuation or appraisal. Smart Property Insights Model v1.0
Daggafontein is a quiet, industrial-adjacent residential area in Springs that offers affordable property options and convenient access to the broader East Rand infrastructure.
* Distances and amenities are approximate.