Resort-style living in Zambezi Manor Lifestyle Estate, set across 35 hectares with trails, pool and conservation areas. Three huge balconies and a pajama lounge; four beds, three baths, two garages.
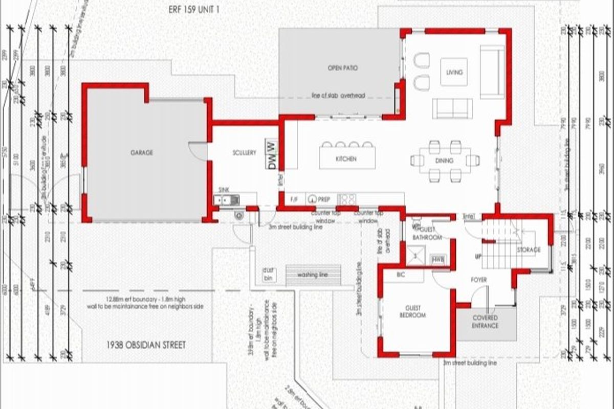
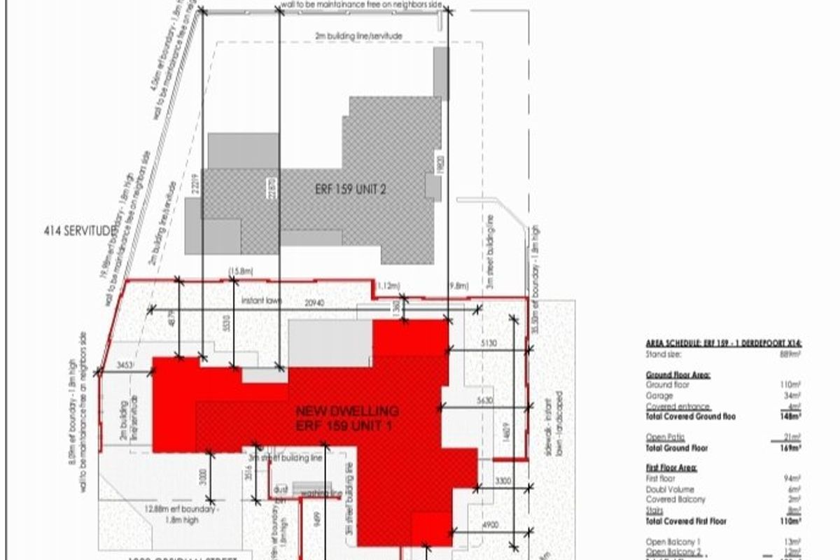
159-1 4 BED, 3 BATH, DINING AREA, LOUNGE, PATIO, 2 GARAGES AND PARK AREA, 3 HUGE BALCONIES AND A PAJAMA LOUNGE (304M2)
159-2 3 BED, STUDY, 2.5 BATH, DINING AREA, LOUNGE, 1 GARAGE & 1 PARKADE, 3 BALCONIES, PATIO AND PAJAMA LOUNGE (270M2) STAND SIZE 445M2 R 3 630 000.00
Zambezi Manor Lifestyle Estate is spread over 35 hectares of prime residential property. The estate consists of 217 full-title residential stands, 42 duet stands, a clubhouse, swimming pool, outdoor gym, running trails and a conservation area. This combination offers clients a unique lifestyle that is enhanced by the estate’s cutting-edge security.
Listed for sale at R3,900,000
Price reduced by 0.3% to R3,890,000
Price increased by 0.8% to R3,920,000
Get an instant building insurance quote for this 4 bedroom property in Zambezi Manor Lifestyle Estate
Get my priceCalculate your moving costs to Zambezi Manor Lifestyle Estate with the help of our moving partners.
Get quotesZambezi Manor Lifestyle Estate offers a secure, family-oriented living environment in the northern suburbs of Pretoria, characterized by modern homes, well-maintained communal facilities, and convenient access to major arterial routes.
* Distances and amenities are approximate.