Entertain effortlessly in Fountainbrook Estate adjacent to Midstream, with clubhouse and 24‑hour security. Turnkey design includes 6x3m pool and sunken boma — four en‑suite bedrooms, double garage.
Embark on the journey of building your dream home in the prestigious new Fountainbrook Estate, situated adjacent to Midstream. The advertised price includes the land, professional fees, and the construction of the 356m2 architectural design, allowing you the flexibility to select your own interior finishes to suit your personal style.
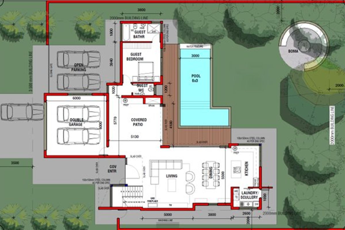
The Proposed Design: The layout maximizes the 800m2 property, offering a sophisticated flow for family living.
GROUND FLOOR :
A grand double-volume entrance leads into an expansive open-plan living and dining area, warmed by a feature gas fireplace.
The modern kitchen includes a separate scullery/laundry to keep the entertainment zones pristine.
A private Guest Bedroom with an en-suite bathroom is conveniently located downstairs, perfect for visitors or multi-generational living.
OUTDOOR LIVING :
Designed for the entertainer, the living areas stack open to a covered patio with a built-in braai.
The package specifically includes a sparkling 6x3m swimming pool and a sunken firepit Boma, creating the ultimate backyard sanctuary.
FIRST FLOOR :
Central Pyjama Lounge
Dedicated Study
The lavish Main Bedroom features a walk-in dressing room, a full en-suite bathroom, and a private balcony.
Two additional family bedrooms, both en-suite, complete the upper level.
WHY BUY THIS TURNKEY ?
Savings: You pay No Transfer Duty on the purchase (Prices include VAT).
Customization: Choose your own tiles, cupboards, and paint colors within the PC provisional sums.
Newness: Everything is brand new, covered by NHBRC warranties.
KEY FEATURES :
Bedrooms: 4 Bedrooms (All En-suite) + Guest WC.
Extras Included: Swimming Pool (6x3m) & Boma.
Work From Home: Dedicated Study & Upstairs Pyjama Lounge.
Garaging: Double Automated Garage + Ample Open Parking.
ESTATE FEATURES :
Fountainbrook Estate (24hr Security, Parks, Clubhouse).
Monthly Rates and taxes estimated.
Pets allowed as per HOA rules.
Book a private consultation on-site to walk the stand and visualize your future home.
*EXCLUSIVE VIEWING BY APPOINTMENT ONLY*
* Monthly costs are estimates and should be confirmed with the agent.
Listed for sale at R6,966,600
MyProperty Benchmark Indicator: Data-driven comparison vs similar active properties
Based on 87 listings in Fountainbrook Estate
Insight
Priced above the median for similar properties in the area. Floor size is 23% larger than typical for similar homes.
Similar properties pricing
Key differences
Affordability
R 68,387 / month
Estimated bond repayment
20 years · 10.25% · 0% deposit
Market depth
87 similar listings
High similar-home inventory in Fountainbrook Estate
Median time on market: 140 days
* Insights are based on current active listings (excludes sold data) and may change. This is not a valuation or appraisal. Smart Property Insights Model v1.0
Fountainbrook Estate offers a secure and family-friendly residential environment with convenient access to amenities in the broader Centurion area.
* Distances and amenities are approximate.