Brand new home in Fountainbrook: 4 bedrooms, 3 bathrooms, double garage, pool, 246 m² floor size, no transfer duty.
Brand New Family Home in Fountainbrook | Double Garage | Pool | 4 Bedrooms | Staff Quarters or Study | No Transfer Duty
In Construction
Key Details:
Location: Fountainbrook
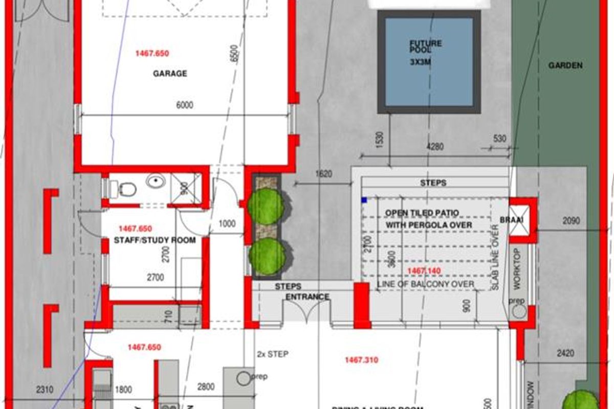
Garages: Double automated garage
Bedrooms: 4 (including guest room)
Bathrooms: 3 (Main ensuite, shared upstairs bathroom, guest bathroom)
Staff Quarters / Study: Versatile ground-floor room
Living Areas: Open-plan kitchen, dining & living area
Extras: Separate scullery, swimming pool, balconies
Bonus: No Transfer Duty – Save thousands on your dream home!
Overview
Move into this brand-new, transfer-duty-free home located in the sought-after Fountainbrook Estate. Thoughtfully designed for practical luxury, this double-storey residence offers ample space for relaxed family living and seamless entertaining.
The ground level features an open-concept layout including a modern kitchen with a separate scullery, a spacious dining area, and a comfortable living room with direct access to the sparkling pool. A private guest bedroom with a nearby bathroom provides ideal accommodation for visitors, and a versatile additional room can serve as either staff quarters or a home office/study.
Upstairs, the main suite impresses with a private balcony, large walk-in closet, and full ensuite bathroom. Bedrooms 2 and 3 share a bathroom, and Bedroom 2 features its own balcony, adding charm and natural light.
Property Features
Ground Floor:
Double automated garage
Guest bedroom with bathroom
Versatile staff quarters or study/home office
Open-plan kitchen with separate scullery
Dining room and lounge with pool access
Sparkling swimming pool
Upstairs:
Main bedroom with private balcony, large walk-in closet (WIC), and ensuite
Bedroom 2 with balcony
Bedroom 3
Shared bathroom for Bedrooms 2 & 3
Why Choose This Home?
This brand-new home not only offers modern finishes and a practical family layout, but also comes with the significant financial benefit of no transfer duty. Located in the secure and upmarket Fountainbrook Estate, it's an ideal opportunity for families seeking value, space, and peace of mind.
* Monthly costs are estimates and should be confirmed with the agent.
Listed for sale at R4,800,000
MyProperty Benchmark Indicator: Data-driven comparison vs similar active properties
Based on 87 listings in Fountainbrook Estate
Insight
Priced below the median for similar properties in the area. Floor size is 15% smaller than typical for similar homes.
Similar properties pricing
Key differences
Affordability
R 47,119 / month
Estimated bond repayment
20 years · 10.25% · 0% deposit
Market depth
87 similar listings
High similar-home inventory in Fountainbrook Estate
Median time on market: 141 days
* Insights are based on current active listings (excludes sold data) and may change. This is not a valuation or appraisal. Smart Property Insights Model v1.0
Fountainbrook Estate offers a secure and family-friendly residential environment with convenient access to amenities in the broader Centurion area.
* Distances and amenities are approximate.