Relaxed family living on a generous 600sqm block in a peaceful suburban setting, with open-plan entertaining, low-maintenance facebrick finishes and three beds, two baths, double garage.
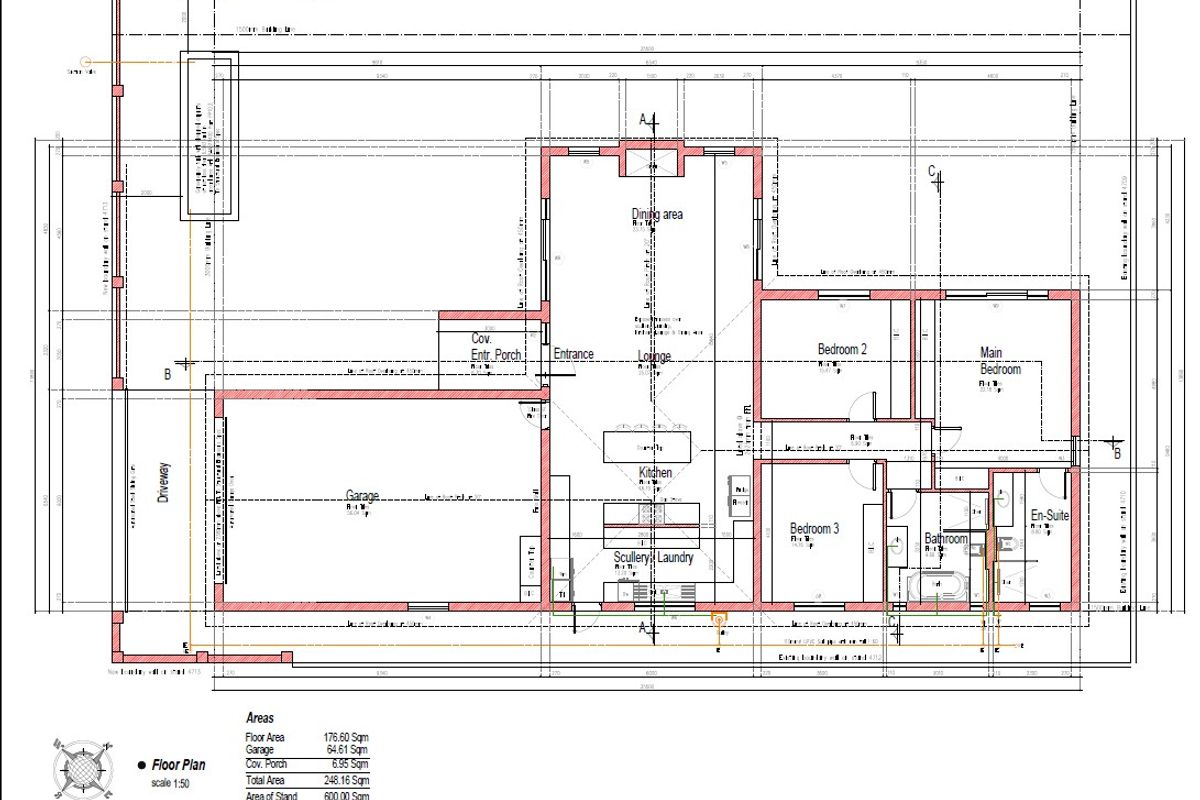
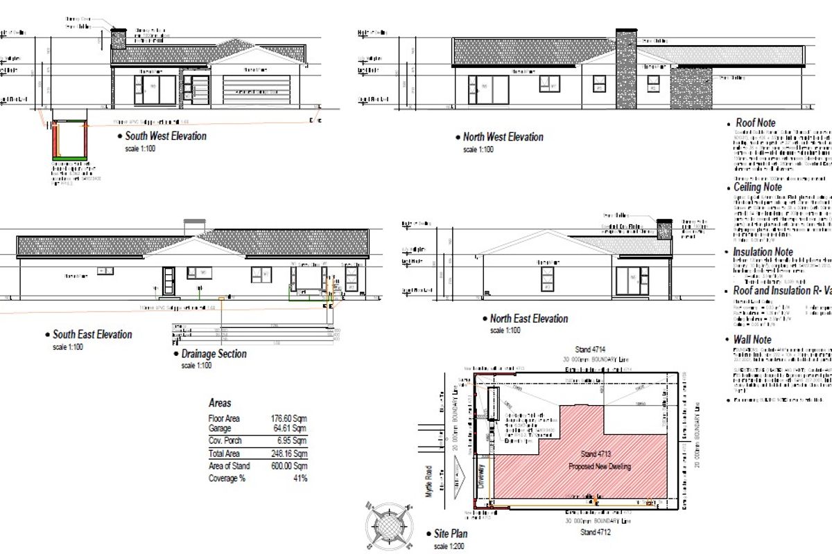
Construction has commenced on this stylish new home, perfectly positioned on a generous 600sqm block. Designed for modern living, the residence will offer approximately 248sqm of well-planned internal space, combining functionality with contemporary comfort.
The home features three spacious bedrooms and two modern bathrooms, ideal for families or professionals seeking quality and convenience. A double garage with additional storage space provides ample room for vehicles, tools, or recreational equipment.
Built as a low-maintenance facebrick home, the property will showcase modern finishes throughout, delivering a timeless exterior and a sleek, contemporary interior. Thoughtfully designed living areas create an inviting atmosphere, perfect for everyday living and entertaining.
This is an excellent opportunity to secure a brand-new home with quality craftsmanship, generous proportions, and modern appeal.
Contact me to schedule a viewing!
Listed for sale at R3,250,000
MyProperty Benchmark Indicator: Data-driven comparison vs similar active properties
Based on 107 listings in Jeffreys Bay (town)
Insight
Priced above the median for similar properties in the area. On a price-per-m² basis, it is 7% above the median. Floor size is 16% larger than typical for similar homes.
Benchmark uses town-level data where suburb sample size is limited. Premium areas may trade above town averages - check with the agent for local guidance.
Similar properties pricing
Key differences
Affordability
R 31,903 / month
Estimated bond repayment
20 years · 10.25% · 0% deposit
Market depth
107 similar listings
High similar-home inventory town-wide (Jeffreys Bay)
Median time on market: 93 days
* Insights are based on current active listings (excludes sold data) and may change. This is not a valuation or appraisal. Smart Property Insights Model v1.0
Noorsekloof offers a tranquil residential environment with close proximity to nature reserves and beaches, appealing to those seeking a relaxed coastal lifestyle.
* Distances and amenities are approximate.