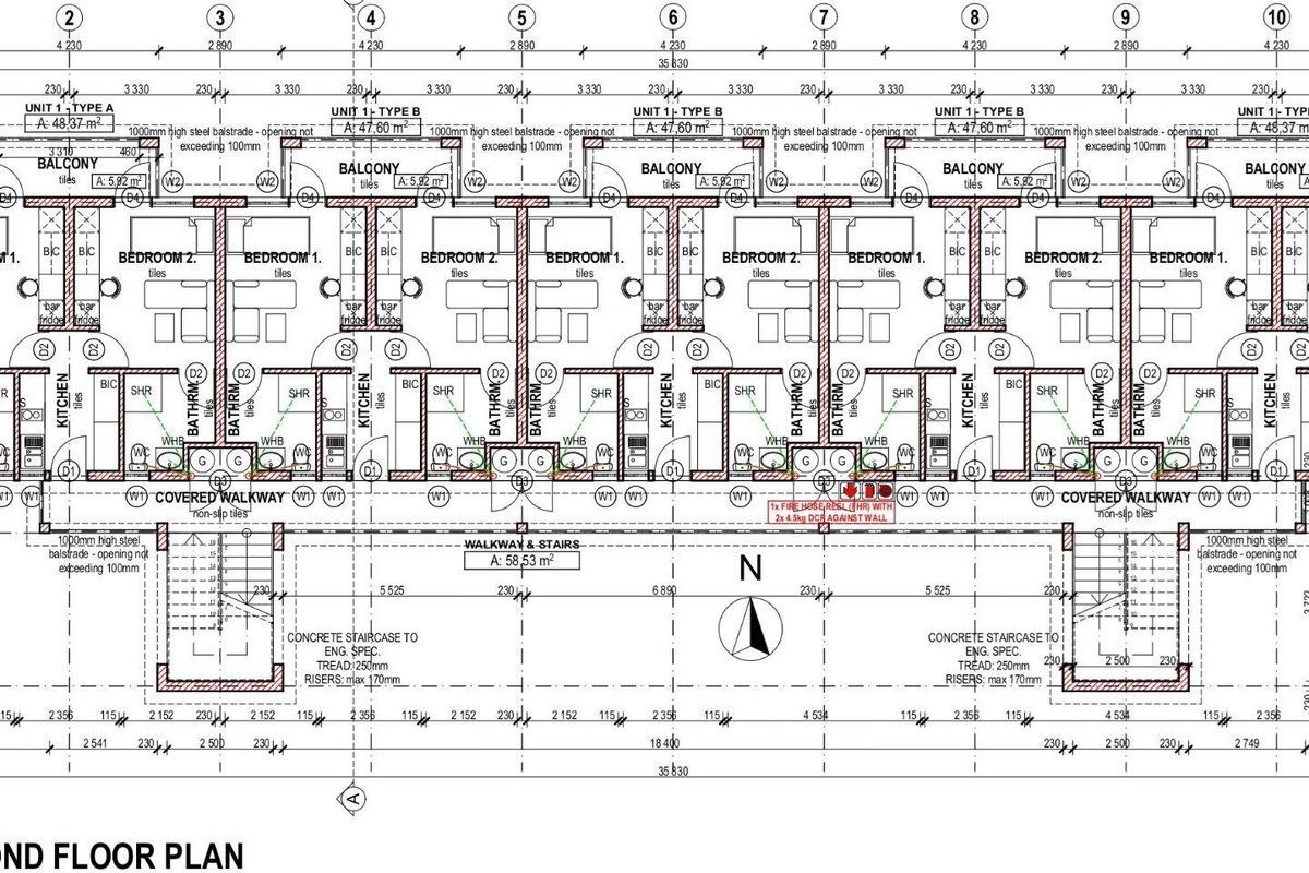
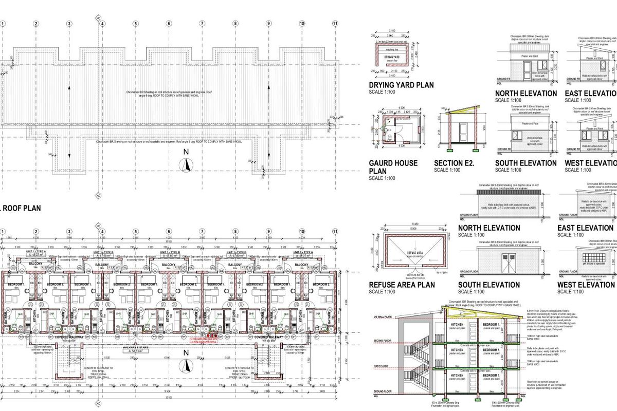
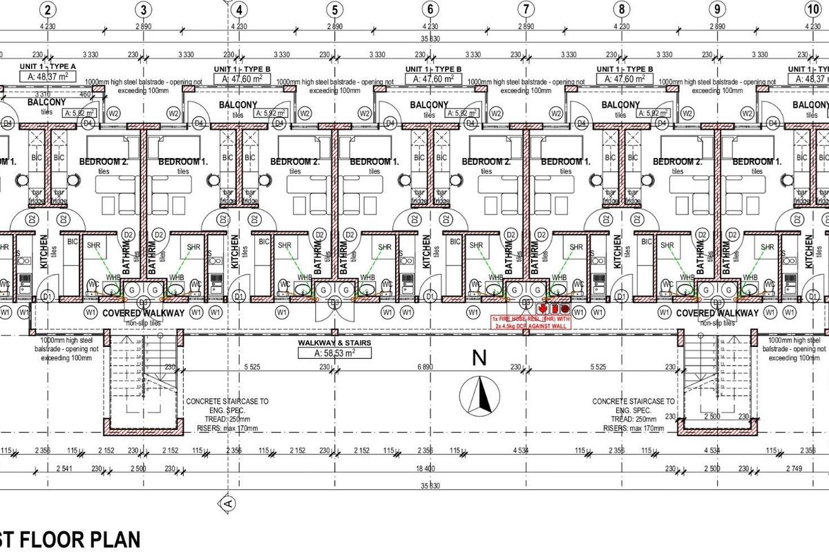
Create a peaceful, family-focused community north of Pretoria in growing Akasia, minutes from Akasia High School — 5.1ha approved for 120 sectional title units plus childcare for 200 children.
Approved for residential 3; 120 Sectional title units
PLUS, educational (Child care for 200 Children)
Situated near the Akasia High School north of Pretoria, this 5-hectare property is a dream for developers looking for the next big project.
Perfect for those looking for a tranquil escape outside the hustle and bustle of the city, Akasia is a growing area ripe for new development thanks to its ever-increasing demand.
Development designs include:
Detailed conditions of the establishment are available on appointment
* Monthly costs are estimates and should be confirmed with the agent.
Listed for sale at R5,000,000
Akasia Central is a strategically located peri-urban agricultural hub characterized by high-yield potential, excellent logistical connectivity to Pretoria's markets, and a temperate climate suitable for intensive small-scale farming and livestock production.
* Distances and amenities are approximate.